EasyManua.ls Logo

LG LB-E6080RH - Page 14

LG LB-E6080RH
71 pages
Print Icon
To Next Page IconTo Next Page
To Next Page IconTo Next Page
To Previous Page IconTo Previous Page
To Previous Page IconTo Previous Page
Loading...
14
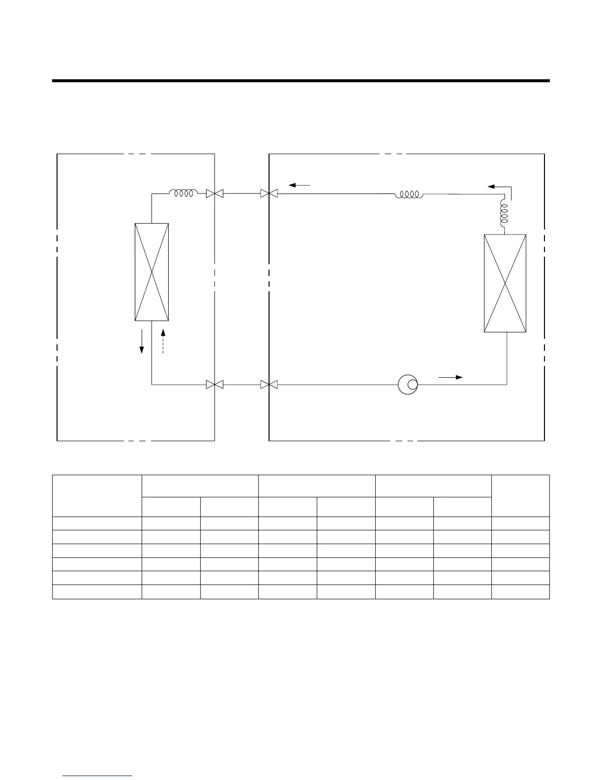
• COOLING ONLY (LB-H1860FH/LB-H2460FH/LB-G3660FH/LB-G3680FH/
LB-E4880FH/LB-E6080FH)
INDOOR UNIT OUTDOOR UNIT
HEAT
EXCHANGER
(CONDENSER)
HEAT
EXCHANGER
(CONDENSER)
COMPRESSOR
GAS SIDE
LIQUID SIDE
CAPILLARY TUBE
Rated performance for refrigerant line length of: .7.5m
If 18K Model is installed at a distance of 15m, 225g of refrigerant should be added (15-7.5)x30g=225g
LB-H1860FH 5/8" 1/4" 7.5 50 5 30 30
LB-H2460FH 5/8" 1/4" 7.5 50 5 30 30
LB-G3660FH 5/8" 1/4" 7.5 50 5 30 40
LB-G3680FH 5/8" 1/4" 7.5 50 5 30 40
LB-E4880FH 3/4" 3/8" 7.5 50 5 30 40
LB-E6080FH 3/4" 1/2" 7.5 50 5 30 80
*Additional
refrigerant
(g/m)
Pipe size(Diameter: ø) Piping length(m) Elevation(m)
MODEL
Gas Liquid Rated Max. Rated Max.

Related product manuals