EasyManua.ls Logo

LG LB-E6080RH - Page 17

LG LB-E6080RH
71 pages
Print Icon
To Next Page IconTo Next Page
To Next Page IconTo Next Page
To Previous Page IconTo Previous Page
To Previous Page IconTo Previous Page
Loading...
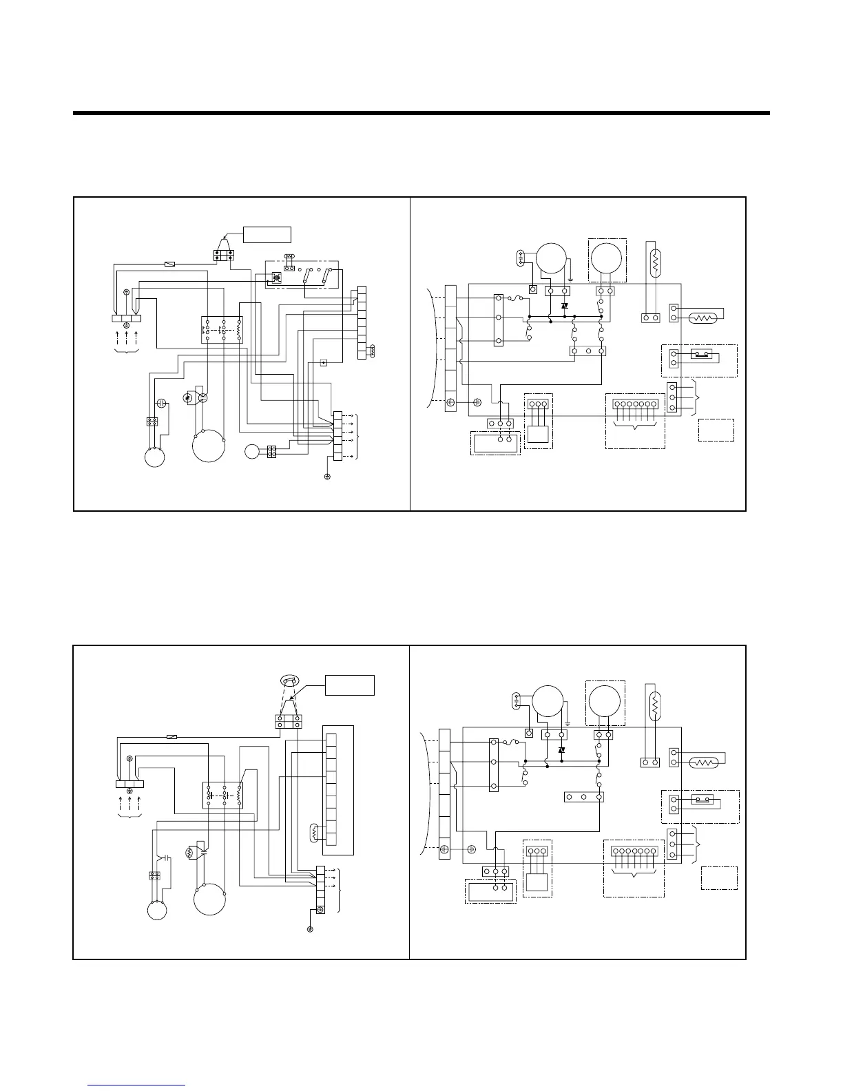
HEAT PUMP
Model : LB-G3660RH/PH
COOLING ONLY
17
OUTDOOR WIRING DIAGRAM INDOOR WIRING DIAGRAM
3854A20166A
3854A20126H
INDOOR
MOTOR
DRAIN
PUMP
YL
BR
OR
BR
BK
BL
RD
BK
BL BR
BL
BL
GN/YL
GN/YL
COMP
4 WAY
FUSE
250V 8A
TEMP.
THERMISTOR
PIPE
THERMISTOR
FLOAT S/W
REMOTE
CONTROL
ZONE
CONTROL
A/CL
UNIT
VENTILATOR
T/B
TERMINAL
BLOCK
1
(
L
)
2
(
N
)
4 3
5
TO OUTDOOR UNIT
TRIAC
VENT
OPTION
1TM
220-240V
1Ø, 50Hz
POWER SUPPLY
BK
L1 L2
T1 T2
A2
A1
BK
WH
WH
OR
RD
BK
TNS
NO
C TH
PIPE TH
NCNO NC
D.P
52C
LOW AMBIENT KIT.
WH
WH
WH
WH
F1
BK
Co
BK
BK
OR
OR
YL
FMo
20SV
RDOR
WH
BK
BK
BK
BL
T/B
BK BK
BK BK
GN/YL
Tmo
To the indoor unit
GN/YL
23
LN
1
2
3
4
5
6
BK
WH
RD
R
C
S
CM
Cr
PTCR
1
2
3
4
5
6
7
8
9
REMOVE JUMP WIRE
WHEN CONNECTING
FIRE ALARM SYSTEM
BK
OUTDOOR WIRING DIAGRAM INDOOR WIRING DIAGRAM
3854A20166C
3854A20126G
INDOOR
MOTOR
DRAIN
PUMP
YL
BR
OR
BR
BK
BL
RD
BL BR
BL
BL
GN/YL
GN/YL
COMP
FUSE
250V 8A
TEMP.
THERMISTOR
PIPE
THERMISTOR
FLOAT S/W
REMOTE
CONTROL
ZONE
CONTROL
A/CL
UNIT
OPTION
TERMINAL
BLOCK
1
(
L
)
2
(
N
)
4 3
5
TO OUTDOOR UNIT
TRIAC
VENTILATOR
T/B
VENT
REMOVE JUMP WIRE
WHEN CONNECTING
FIRE ALARM SYSTEM
BK
BK
1TM
220-240V
1Ø, 50Hz
POWER SUPPLY
BK
52C
L1 L2
T1 T2
A2
A1
BK
WH
F1
BK
WH
WH
Co
BK
BK
OR
OR
YL
FMo
WH
RD
WH
WH
WH
RD
GN/YL
Tmo
To the indoor unit
WH
GN/YL
23
LN
543
2(N) 1(L)
BK
WH
RD
R
C
S
CM
Cr
PTCR
1
2
3
4
5
6
7
8
9
LOW AMBIENT KIT
PIPE. TH

Related product manuals