EasyManua.ls Logo

LG LBUK4880BL - Installation Guide; Unit Placement and Mounting

LG LBUK4880BL
64 pages
Print Icon
To Next Page IconTo Next Page
To Next Page IconTo Next Page
To Previous Page IconTo Previous Page
To Previous Page IconTo Previous Page
Loading...
- 29 -
Copyright ©2007 LG Electronics. Inc. All right reserved.
Only for training and service purposes
LGE Internal Use Only
Installation of Indoor, Outdoor Unit
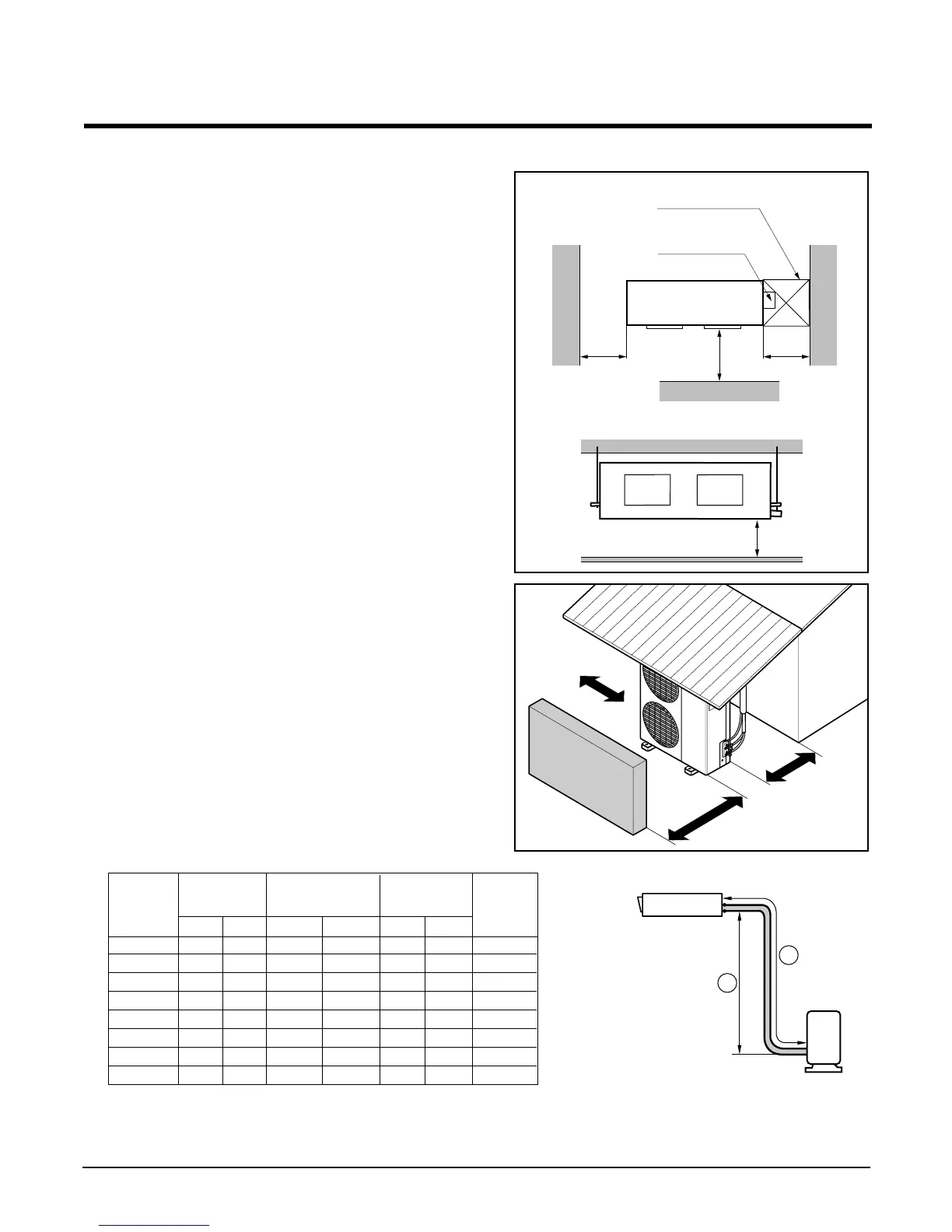
1. Selection of the best location
1) Indoor unit
Select location
Install the air conditioner in the location that satis-
fies the following conditions.
The place shall easily bear a load exceeding four
times the indoor units weight.
The place shall be able to inspect the unit as the
figure.
The place where the unit shall be leveled.
The place shall allow easy water drainage.(Suit-
able dimension H is necessary to get a slope to
drain as figure.)
The place shall easily connect with the outdoor
unit.
The place where the unit is not affected by an
electrical noise.
The place where air circulation in the room will be
good .
There should not be any heat source or steam
near the unit.
2) Outdoor unit
If an awning is built over the unit to prevent direct
sunlight or rain exposure, be careful that heat
radiation from the condenser is not restricted.
There should not be any animals or plants which
could be affected by hot air discharged.
Ensure the spaces indicated by arrows from the
wall, ceiling, fence or other obstacles.
3) Piping length and the elevation
Indoor unit
Outdoor unit
B
A
More than
30cm
More than
30cm
More than
70cm
Sunroof
Fence or
obstacles
Top view
(unit: mm)
H
Front view
600600
Front
Inspection hole
(600X600)
Control box
1000
30K BTU/h
5/8" 3/8" 7.5 30 5 15 70
36K BTU/h
5/8" 3/8" 7.5 30 5 15 50
42K BTU/h 3/4'' 3/8" 7.5 30 5 15 70
48K BTU/h 3/4'' 3/8" 7.5 30 5 15 70
60K BTU/h 3/4'' 3/8" 7.5 30 5 15 70
72K BTU/h 1'' 1/2" 7.5 25 5 20 70
90K BTU/h 9/8'' 5/8" 7.5 30 5 20 90
100K BTU/h 9/8'' 5/8" 7.5 30 5 20 100
Capacity
Gas Liquid
Elevation B(m)
Piping Length
A(m)
* Additional
Refrigerant
(g/m)
Pipe Size (Diam-
eter: Ø)
inch
Standard
Standard
Max.
Max.

Related product manuals