EasyManua.ls Logo

LG MULTI V 5 ARUN140LTE5 - Refrigerant Piping Installation Procedures; Pipe Connection Precautions and Outdoor Unit Combinations

LG MULTI V 5 ARUN140LTE5
39 pages
To Next Page IconTo Next Page
To Next Page IconTo Next Page
To Previous Page IconTo Previous Page
To Previous Page IconTo Previous Page
Loading...
11
ENGLISH
Service Port
Liquid pipe
Gas pipe
CAUTION
Please block the pipe knock outs of the front and side panels after
installing the pipes.
(Animals or foreign objects may be brought in to damage wires.)
!
WARNING
• Always careful not to leak the refrigerant during welding.
• The refrigerant generates poisonous gas harmful to human body
if combusted.
• Do not perform welding in a closed space.
• Be sure to close the cap of the service port to prevent gas leak-
age after the work.
!
ABCD
IDU side connection pipe
ODU to ODU connection pipe (1st branch)
ODU to ODU connection pipe (2st branch)
ODU to ODU connection pipe (3rd brach)
(Master)
AB
(Slave1)
C
(Slave2)
D
(Slave3)
2 Unit
3 Unit
4 Unit
ARCNN21
ARCNN31
ARCNN41
C
C
A
Outdoor units Model
Liquid Pipe Gas Pipe
I.D.15.88 I.D.15.88
I.D.15.88
I.D.19.05
I.D.12.7
I.D.12.7
I.D.9.52
331
83
70
314
I.D.22.2
O.D.19.05
O.D.12.7
I.D.9.52
334
281
I.D.15.88
I.D.19.05
I.D.19.05
I.D.12.7
83
I.D.22.2
334
281
I.D.15.88
I.D.19.05
I.D.19.05
I.D.12.7
83
I.D.22.2
C
C
I.D.28.58
I.D.22.2
O.D.19.05
O.D.22.2
I.D.28.58
I.D.31.8
I.D. 19.05
O.D.15.88
I.D. 19.05O.D.15.88
I.D.22.2O.D.19.05
I.D.19.05O.D.15.88
I.D.19.05O.D.15.88
I.D.12.7
I.D.15.88
O.D.19.05
C
C
C
I.D.28.58
O.D.22.2
125
I.D.41.3
O.D.34.9
111
130
416
408
I.D.28.58 I.D.28.58
I.D.34.9
I.D.41.3 I.D.38.1
O.D.34.9
I.D.31.8
I.D.22.2
I.D.28.58
341
111
298
I.D.34.9
I.D.41.3
I.D.28.58
134
415
375
I.D.44.48 I.D.53.98
I.D.41.3
I.D.28.58
I.D.34.9O.D. 28.58I.D.22.2
I.D.34.9O.D.28.58I.D.22.2
I.D.34.9O.D.28.58I.D.22.2
I.D.53.98
I.D.44.5
O.D.41.3
I.D.34.9O.D.28.58I.D.22.2
O.D.41.3I.D. 44.5I.D.53.98
O.D.34.9
I.D.28.58
2, 3, 4 Outdoor Units
For more information, refer accessory installation manual.
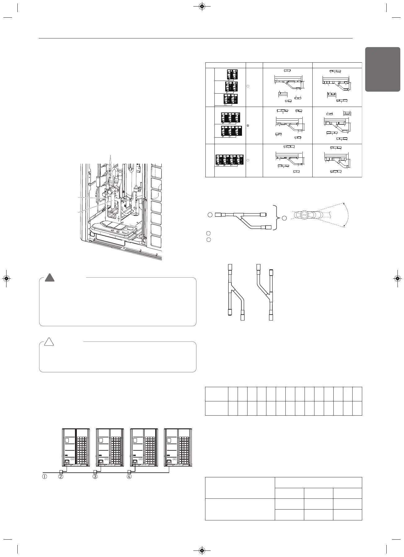
Y branch
A
B
To outdoor unit
To branch piping or indoor unit
A
B
Facing
upwards
Facing
downwards
Within ± 3° Within ± 3°
Viewed from point A
in direction of arrow
Within +/- 10
2 Commercially available piping often contains dust and other materi-
als. Always blow it clean with a dry inert gas.
3 Use care to prevent dust, water or other contaminants from entering
the piping during installation.
4 Reduce the number of bending portions as much as possible, and
make bending radius as big as possible.
5 Always use the branch piping set shown below, which are sold sep-
arately.
Caution
1 Use the following materials for refrigerant piping.
- Material: Seamless phosphorous deoxidized copper pipe
- Wall thickness : Comply with the relevant local and national regula-
tions for the designed pressure 3.8 MPa (551 psi).
We recommend the following table as the mini-
mum wall thickness.
Outer diameter
[mm(inch)]
6.35
(1/4)
9.52
(3/8)
12.7
(1/2)
15.88
(5/8)
19.05
(3/4)
22.2
(7/8)
25.4
(1)
28.58
(1-1/8)
31.8
(1-1/4)
34.9
(1-3/8)
38.1
(1-1/2)
41.3
(1-5/8)
44.45
(1-3/4)
53.98
(2-1/8)
Minimum thick-
ness [mm(inch)]
0.8
(0.03)
0.8
(0.03)
0.8
(0.03)
0.99
(0.04)
0.99
(0.04)
0.99
(0.04)
0.99
(0.04)
0.99
(0.04)
1.1
(0.04)
1.21
(0.05)
1.35
(0.05)
1.43
(0.06)
1.55
(0.06)
2.1
(0.08)
Y branch
Header
4 branches 7 branches 10 branches
ARBLB01621, ARBLB03321,
ARBLB07121, ARBLB14521,
ARBLB23220
ARBL054 ARBL057 ARBL1010
ARBL104 ARBL107 ARBL2010
Connection of Outdoor units
When installing ODU series, refer below picture.
Precautions on Pipe connection / Valve operation
Pipe connection is done by connecting from the end of the pipe to the
branching pipes, and the refrigerant pipe coming out of the outdoor
unit is divided at the end to connect to each indoor unit. Flare connec-
tion for the indoor unit, and welding connection for the outdoor pipe
and the branching parts.
- Use hexagonal wrench to open/close the valve.
REFRIGERANT PIPING INSTAL-
LATION
1,MFL67221438,영영 2018. 10. 4. 영영 11:29 Page 11

Table of Contents

Related product manuals