EasyManua.ls Logo

LG MULTI V ARNU36GTNC4 - Page 381

LG MULTI V ARNU36GTNC4
520 pages
To Next Page IconTo Next Page
To Next Page IconTo Next Page
To Previous Page IconTo Previous Page
To Previous Page IconTo Previous Page
Loading...
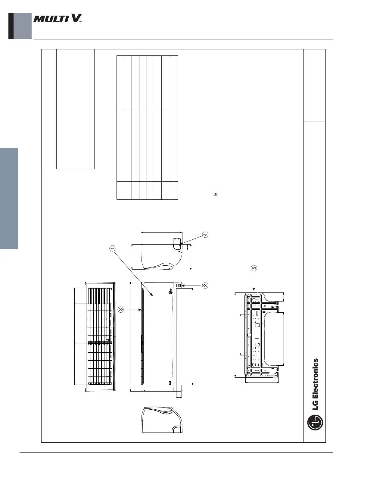
3. Dimensions
Indoor unit
6 _ Wall Mounted Unit (Standard)
Indoor Units
Display & signal receiver
Part Name
Front panel
Air suction grille
Installation plate
Knockout hole
5
No.
2
4
3
1
Remark
289
50
210
45
895
341 323 128
37
790
205
675
327
422
264
70
CHASSIS CODE: SB
Wall Mounted
ARNU05GSB*4
ARNU07GSB*4
ARNU09GSB*4
ARNU12GSB*4
ARNU15GSB*4
Note
1. Unit should be installed in compliance with the installation manual
in the product box.
2. Unit shall be grounded in accordance with the local regulations or
applicable national codes.

Table of Contents

Related product manuals