EasyManua.ls Logo

LG MULTI V ARNU36GTNC4 - Page 44

LG MULTI V ARNU36GTNC4
520 pages
To Next Page IconTo Next Page
To Next Page IconTo Next Page
To Previous Page IconTo Previous Page
To Previous Page IconTo Previous Page
Loading...
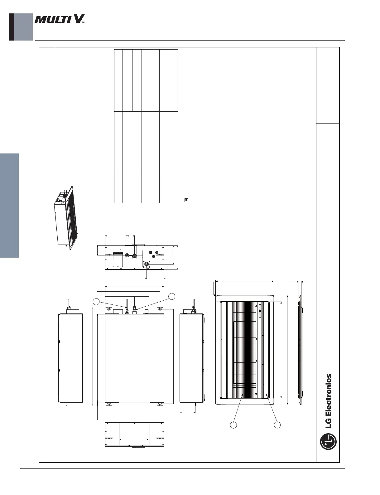
3. Dimensions
Indoor unit
4 _ Ceiling Cassette 2-way
Indoor Units
CHASSIS CODE: TL
Ceiling Cassette 2-way
ARNU18GTL*4
ARNU24GTL*4
ARNU09GTL*4
ARNU12GTL*4
Name
1
Liquid pipe connection Unit size(18k):ø6.35
Unit size(24k):ø9.52
2
Gas pipe connection Unit size(18k):ø12.7
Unit size(24k):ø15.88
3
Air suction grill
4
Air discharge grill
Number Descripition
Note
1. Unit should be installed in compliance with the installation manual
in the product box.
2. Unit shall be grounded in accordance with the local regulations or
applicable national codes.
(unit : mm)
35.6
931.2
4-R15
1,050
921(Air Outlet Hole)
640
28
92
6.5
177.1
225
893
34
206.5
69.2
205.5
69.2
482
550
162.4
144.2
830
2
1
4
3

Table of Contents

Related product manuals