EasyManua.ls Logo

LG Multi V ARNU423M2A4 - Indoor Unit Wiring Diagrams and Legends

LG Multi V ARNU423M2A4
94 pages
Print Icon
To Next Page IconTo Next Page
To Next Page IconTo Next Page
To Previous Page IconTo Previous Page
To Previous Page IconTo Previous Page
Loading...
67
Installation Manual
Due to our policy of continuous product innovation, some specifications may change without notification.
©LG Electronics U.S.A., Inc., Englewood Cliffs, NJ. All rights reserved. “LG” is a registered trademark of LG Corp.
3/24
*Indicated function is optional or factory
installed depending on the applicable model.
*Optional parts are sold separately.
WIRING
High-Static Ducted B8 Chassis
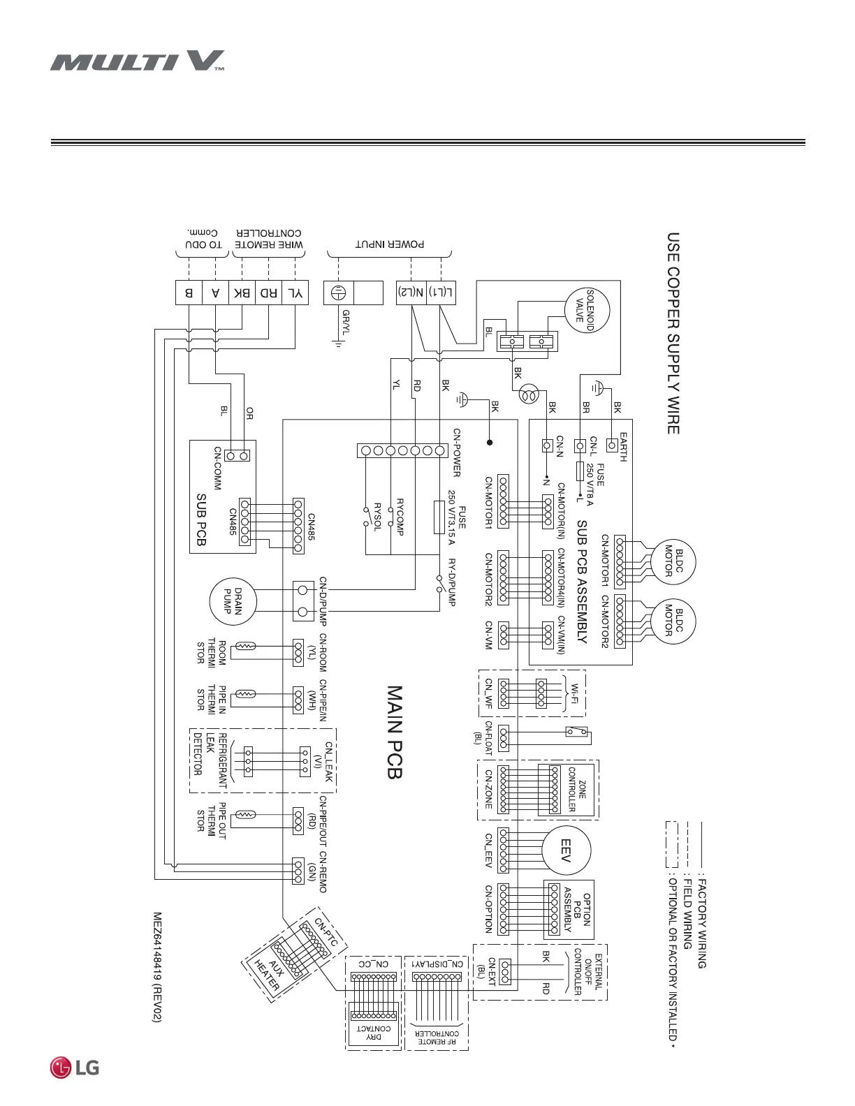
Figure 69: High-Static Ducted B8 Chassis Wiring Diagram.
Optional Connections
Figure 69 shows the control board for the B8 chassis. Connect optional equipment to the control board as required for your system.

Table of Contents

Other manuals for LG Multi V ARNU423M2A4

Related product manuals