EasyManua.ls Logo

LG MULTI V ARNU54GTMA4 - Page 350

LG MULTI V ARNU54GTMA4
520 pages
To Next Page IconTo Next Page
To Next Page IconTo Next Page
To Previous Page IconTo Previous Page
To Previous Page IconTo Previous Page
Loading...
Fresh Air Intake Unit _ 3
Indoor Units
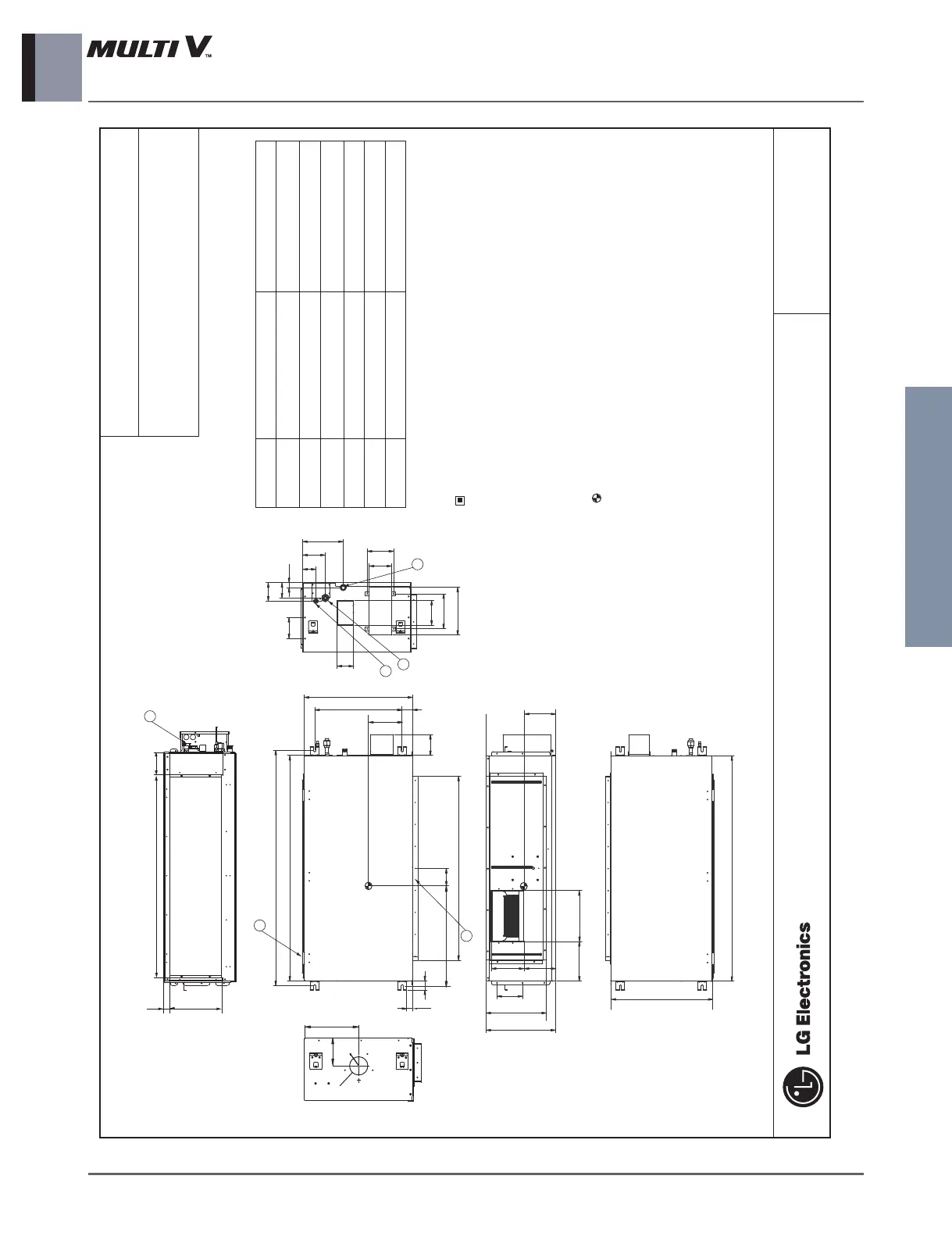
3. Dimensions & Gravity point
Indoor unit
76, Seongsan-dong, Changwon City, Gyeongnam,
641-713, Korea
CHASSIS CODE: BR
Fresh Air Intake Unit
ARNU48GBRZ4
Note
1. Unit should be installed in compliance with the installation manual
in the product box.
2. Unit shall be grounded in accordance with the local regulations or
applicable national codes.
221
123
72
26
83
101
90
135
122
144
260
190
115
1,282
477
298
56
590
118
1,006
114
1,230
50
32
1201,092
25
303
Name
1
Liquid pipe connection
Unit size(48k):ø9.52
2
Gas pipe connection
Unit size(48k):ø15.88
3
Drain pipe connection
Unit size(48k):
ø
25
4
Power supply connection
5
Air discharge
6
Air suction
Number Descripition
(unit : mm)
3
2
1
5
6
4
198
312
60
R60
590
380
140
241 279
178
294
192
1,230
Gravity point
585
177

Table of Contents

Other manuals for LG MULTI V ARNU54GTMA4

Related product manuals