EasyManua.ls Logo

LG Tri-Zone Multi F - Page 264

LG Tri-Zone Multi F
361 pages
Print Icon
To Next Page IconTo Next Page
To Next Page IconTo Next Page
To Previous Page IconTo Previous Page
To Previous Page IconTo Previous Page
Loading...
19
Installation Manual
Due to our policy of continuous product innovation, some specifications may change without notification.
©LG Electronics U.S.A., Inc., Englewood Cliffs, NJ. All rights reserved. “LG” is a registered trademark of LG Corp.
MA
X
MUL
TI
F
MUL
TI
F
GENERAL INSTALLATION GUIDELINES
Location Selection / Inspection
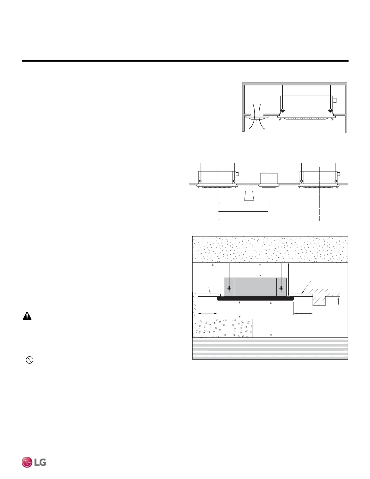
Installing in an Area with High Humidity Levels
If the environment is prone to humidity levels of 80% or more (near the ocean, lakes,
etc.) or where steam could collect in the plenum:
Install additional insulation to the indoor unit (glass wool insulation >13/32 inches
thick).
Install additional insulation to the refrigerant piping (insulation >13/16 inches thick).
Seal all gaps between the indoor unit and the ceiling tiles (make the area air tight) so
that humidity does not transfer from the plenum to the conditioned space. Also, add a
ceiling grille for ventilation.
Ventilation Grille
Figure 3: Installing in a Highly Humid Location.
Figure 4: Installing Multiple Indoor Units.
Required Clearances
Figure 5 shows required clearance distances around a typical
installed unit.
Unpack and Inspect for Freight
Damage
CAUTION
Shipping and net weights of the ceiling cassette units are listed in Table 5.
To help avoid injury to personnel, use two people when carrying a unit by
hand.
Do not unpack the unit and remove the protective materials until
ready to install. Before unpacking, carefully move the packaged unit
to a work area near the installation location.
To help avoid damage to the unit, use two people when carrying a unit by hand.
After opening, if the unit is damaged, repack the unit as it was shipped. RETAIN ALL PACKING MATERIALS. In general, freight damage
claims will be denied if the original packing materials are not retained for the claims adjustor to inspect. Contact a supervisor on how to
proceed with filing a freight claim and to order a replacement unit.
Before opening the shipping container, check the container labeling to verify the unit received is the correct unit. Verify the unit capacity, type, and
voltage.
Installing Multiple Indoor Units in One Area
Ensure there is enough space between indoor units, lighting fixtures,
and ventilation fans / systems.
>59-1/16 inches
Indoor unit
Lighting
Ventilator
Indoor unit
>78-25/32 inches
>118-5/32 inches
Ceiling
Ceiling Tile
Ceiling Tile
Floor
≥13/32
≥11-13/16 inches
H = 6 feet to 12 feet
≥39-3/8 inches
≥19-11/16
≥19-11/16
≤11-13/16 inches
inches
inches
inches
Figure 5: Required Clearances Around Typical Installed Unit.
Note:
Note:

Table of Contents

Other manuals for LG Tri-Zone Multi F

Related product manuals