EasyManua.ls Logo

LG WD-80490 - 6. Wiring Diagram; Program Chart

LG WD-80490
34 pages
To Next Page IconTo Next Page
To Next Page IconTo Next Page
To Previous Page IconTo Previous Page
To Previous Page IconTo Previous Page
Loading...
12
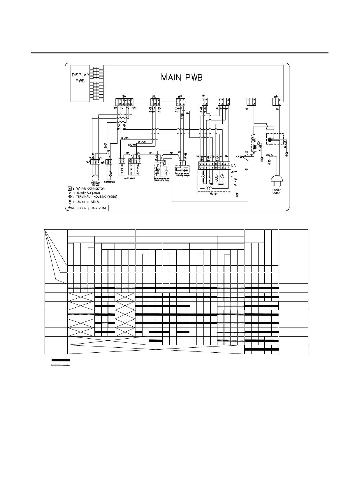
6. WIRING DIAGRAM / PROGRAM CHART
YL BK
WASHING
HEATER
BL YL
* Water Supply : WÆS * Intermittent Spin : IÆS * Disentangle : DÆT
* Basic Cycle
* Optional Cycle
* Pre-Setting Time : Water Supply - 120 sec. * Basic time is minute i
Drain - 60 sec. * The
* ~ Time for varies as the temperature or the amount of laundry water temperature or ambient te
Washing Rinse
Spin
W
Æ
S
Pre Main
Washing
Drain
I
Æ
S
W
Æ
S
Rinsing
Washing Staycooling
Heating
Washing
Drain
W
Æ
S
1 2 3 7654 98 10
Normal
Drain
I
Æ
S
11 12
1
W
Æ
S
Rinsing
13 14
Drain
I
Æ
S
15 16
2
W
Æ
S
Rinsing
17 18
Drain
I
Æ
S
19 20
W
Æ
S
Rinsing
21 22
Drain
I
Æ
S
23 24
W
Æ
S
Rinsing
25 26
Rinse +
Drain
Spin
T
A
U
T
O
O
F
F
3 4
27 28 29 20
E
N
D
20
Cotton
Normal
Working
Time
(Hour:Minute)
About 2:57(54)
120 MIN 60 MIN120240 60120 60 60 240 120 360 60 240 120 360 60 240 120 360 60 240 120 360 60 480 120 20 20
C
Y
C
L
E
S
T
E
P
C
O
U
R
S
E
Time
(SEC)
8
58
~
95
Synthetic
Delicate
Baby Care
About 2:10(07)
About 1:03
About 2:57(54)
About 1:09
4
18
Spin About 14(11)
( ) : WD-8048(9)0S/N/T
Rinse
+ Spin
About 22(19)
4
18
4
~
24
Handwash/Wool
24
Quick 30 About 30
Pre Wash : If the laundry is heavily soiled, Pre Wash course is effective.
Time Save : This option can be used to reduce the time of a wash program.
To use this option press the Time Save button once before the wash program is started.
This option is not available with Quick 30 program.
Rinse+ : Used to additional rinse, which may assist in removing traces of detergent residue.
By selecting Rinse
+
function, the rinse time and the rinse water are increased.
Crease Care : If you want to prevent crease, select this button with spin speed.
Bio : If you want to eliminate protein stains (milk, blood, chocolate...), you may select Bio function by pressing the
option button.

Related product manuals