EasyManua.ls Logo

Likewise 052-4316-2 - Parts Locations

Likewise 052-4316-2
14 pages
Print Icon
To Next Page IconTo Next Page
To Next Page IconTo Next Page
To Previous Page IconTo Previous Page
To Previous Page IconTo Previous Page
Loading...
QTY
1
2
2
1
3
1
1
1
1
1
1
4
12
12
4
4
8
1
3
1
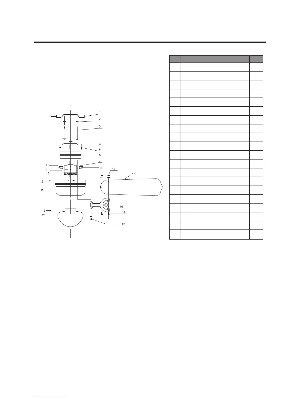
NO.
Description
1
2
3
4
5
6
7
8
9
10
11
12
13
14
15
16
17
18
19
20
3
L
2
1
3
L
2
1
Mounting Bracket
Lock Washer
Wood Screw/ Outlet Box Screw
Motor Support Bar
Mounting Screw
Motor
Switch Housing
Reverse Switch
Fan Pull Chain
Light Pull Chain
Motor Housing
Motor Housing Screw
Hexagon Nut
Blade Screw
Blade
Blade Bracket
Blade Bracket Screw
Light Kit
Light Kit Screw
Glass Shade
Flat Washer/
5
PARTS LOCATIONS