EasyManua.ls Logo

LIMIT AFA 300 - Page 13

LIMIT AFA 300
52 pages
Print Icon
To Next Page IconTo Next Page
To Next Page IconTo Next Page
To Previous Page IconTo Previous Page
To Previous Page IconTo Previous Page
Loading...
11
OVERSIGT
Kombineret, letanvendelig digital vinkelmåler og lineal med LCD-display til hurtig
aflæsning af resultater. Låsefunktion til brug i alle vinkler samt robust skala af rustfrit stål.
EGENSKABER
• LCD med 8 mm cifre
• Kombineret digital vinkelmåler og lineal
• Hurtig måling og høj nøjagtighedsgrad
• Relativ måling
• Låsefunktion til brug i alle vinkler
SPECIFIKATIONER
Nøjagtighed ±0,3°
Opløsning 0,1°
Arbejdsområde:
~
999,9°
Strømforsyning CR2032 3 V lithiumbatteri
Driftsstrøm
120
μ
A
Driftstemperatur 0°C til 50°C (32°F til 122°F)
Driftsfugtighed
85% (ikke-kondenserende)
Produktstørrelse 317
×
35
×
21 mm
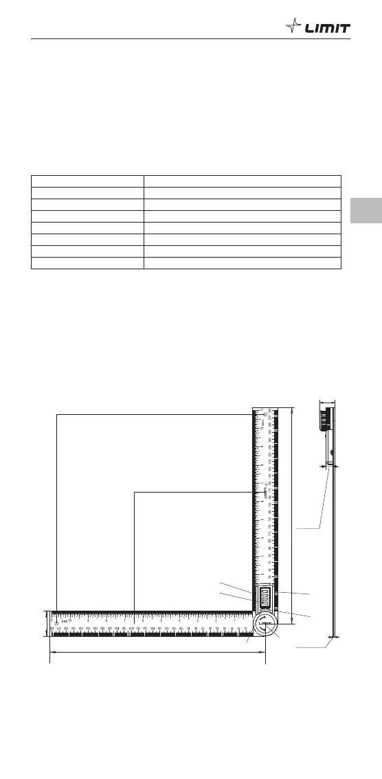
POSITIONER
1. Batterirum
2. Tænd-/slukknap
3. Drejeknap til tilspænding/løsning
4. Nulstillingsknap
5. Batteriknap
6. LCD
7. Skala
8. Ophængningsøjer
300 mm
ZERO
ON/OFF
8
7
5
6
1
2
3
4
2.5 mm
8 mm
20 mm
300 mm
35 mm
AFA300
L
O
O
S
E
T
I
G
H
T
DK

Related product manuals