EasyManua.ls Logo

Loewe bild c.43 - Poloha a Funkce Zapojení

Loewe bild c.43
Print Icon
To Next Page IconTo Next Page
To Next Page IconTo Next Page
To Previous Page IconTo Previous Page
To Previous Page IconTo Previous Page
Loading...
deutsch
71
česky
Loewe bild c | Uživatelský manuál
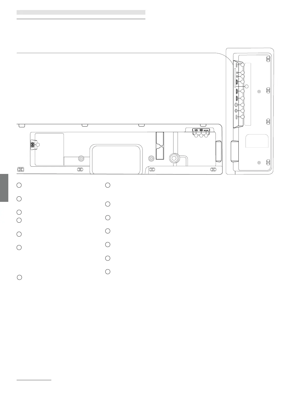
Poloha a funkce zapojení
14
13 12 11
1
2
3
4
5
6
7
8
9
10
1
USB 3.0 – USB připojení
USB typ A – USB 3.0 (max. 1000mA)
2
AUDIO VÝSTUP – Audio výstup
Konektor 3,5 mm (analogový) L/R
3
SERVIS
4
HDMI 1
– HDMI vstup 1
HDMI – Digitální Video VSTUP/Audio VSTUP
5
SPOLEČNÉ ROZHRANÍ -CI port
(standardní V1.4)
6
HDMI 2 - HDMI vstup 2
(s vylepšeným ARC (eARC – zpětný au-
diokanál))
HDMI – digitální video VSTUP / audio
VSTUP/VÝSTUP
7
HDMI 3 – HDMI vstup 3
HDMI – Digital Video VSTUP/Audio VSTUP
8
ANT TV - Pozemní/kabelová analogová /
DVB-T/T2/C HD
IEC zástrčka – 75 Ohm / 5 V / 80mA
9
ANT SAT 1 – Satelitní anténa DVB-S/S2 HD
Zásuvka F – 75 Ohm / 13/18 V / 500 mA
10
USB 2.0 – USB připojení
USB typ A – USB 2.0 (max. 500mA)
11
HDMI 4
1)
– Vstup HDMI 4
HDMI – Digitální video VSTUP/Audio VSTUP
12
TOSLINK – Audio výstup
TOSLINK (digitální)
13
LAN - Síťové připojení
RJ-45 – Ethernet / Rychlý ethernet
14
AC VSTUP – Síťové připojení
Síťová zásuvka – 220-240 V – 50 / 60 Hz
Poloha a funkce zapojení
1)
Vstup HDMI 4 není na zařízení bild c.32 k dispozici.

Table of Contents

Related product manuals