EasyManua.ls Logo

mabe ITV085ICER - Page 6

mabe ITV085ICER
25 pages
Print Icon
To Next Page IconTo Next Page
To Next Page IconTo Next Page
To Previous Page IconTo Previous Page
To Previous Page IconTo Previous Page
Loading...
Page 5
PRINTED : JAN’2015 REF NO. SM7715010-01-11
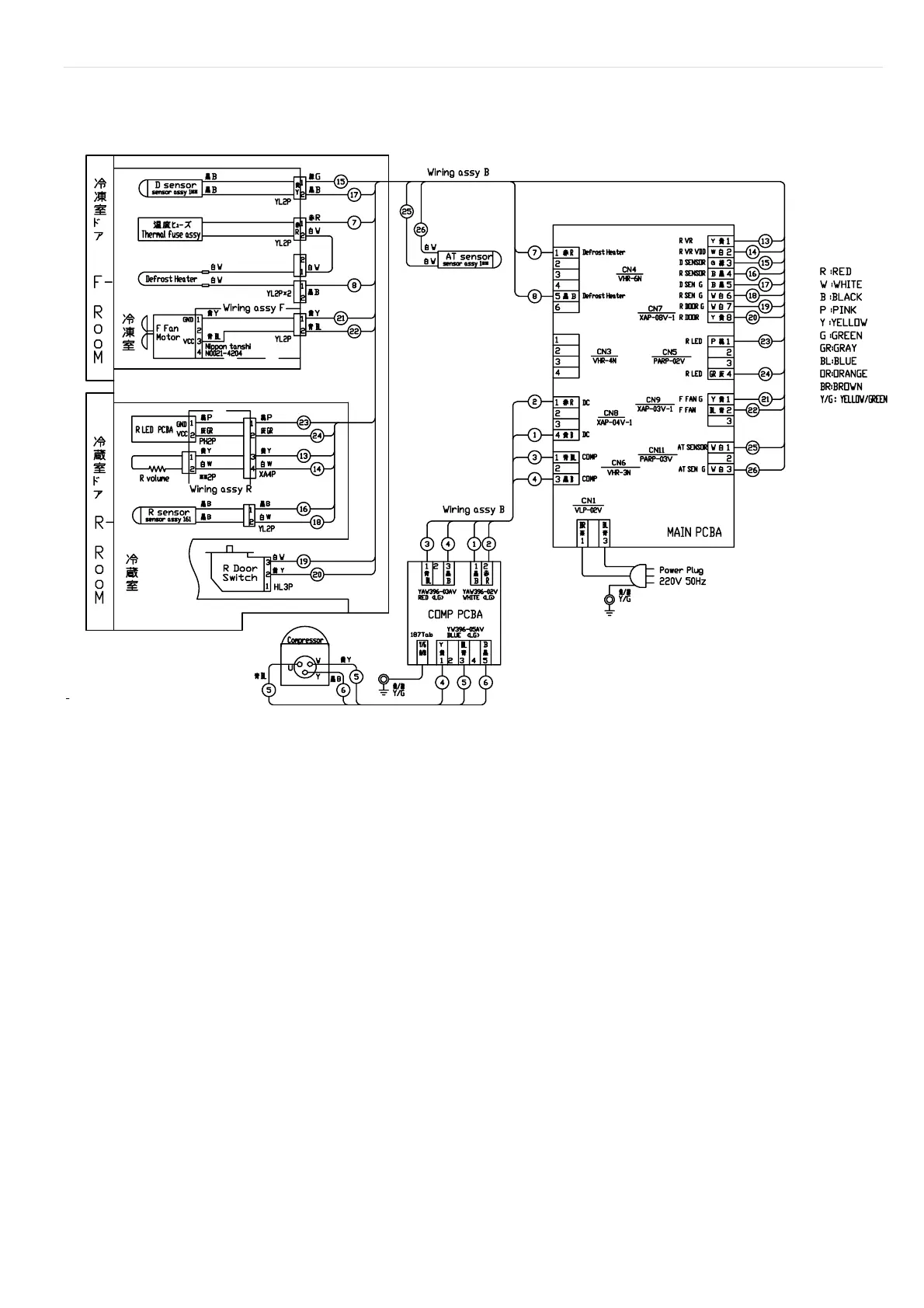
2-2 Reference wiring diagram

Related product manuals