EasyManua.ls Logo

Mareli Systems LC 25 - Boiler Installation

Mareli Systems LC 25
20 pages
Print Icon
To Next Page IconTo Next Page
To Next Page IconTo Next Page
To Previous Page IconTo Previous Page
To Previous Page IconTo Previous Page
Loading...
7
Mareli Systems
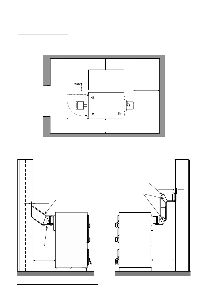
2. BOILER INSTALLATION
The room where the boiler is to be placed must be provided with ventilation. It must be placed in
such a way that there is access on all sides, according to the attached sketch:
400
400
500
700
2.1 Location of the boiler
2.2 Connection to the chimney
min 500 mm
min 500 mm
10 mm
10 mm
Opening for the
cleaning
ermal insulation
ermal insulation
Opening for the
cleaning