EasyManua.ls Logo

Mark INFRA series - Page 70

Mark INFRA series
128 pages
Print Icon
To Next Page IconTo Next Page
To Next Page IconTo Next Page
To Previous Page IconTo Previous Page
To Previous Page IconTo Previous Page
Loading...
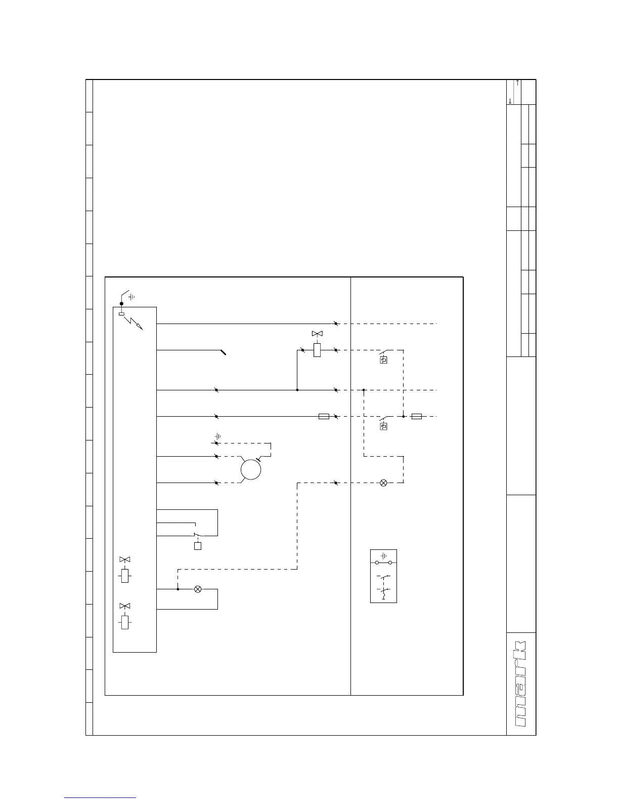
8.0 Schemat elektryczny (INFRA 50)
70

 

 !
" #   
$%
$&
'()


)%
*%++
#"

,-!
-
$-
.%



,+

"

/ 0

#

*&/%%0&0!%&1%
*&/%%0&0!%&1%
232
$
$
434
*
)
,$
,'
,'4 
5&!
6
6
-!+
70&
8&!&9
%0%%
'%%!
'%%! !
*')5:#
';&
';&
<
20%
&
&0
8* 8&!
$ 6 !
$
=>

4
$

)
"
,$
?
@
=>
#
=>

2
.
,'
2
A.
=>

2.@B
*

B
B
4
8*
&0
$
4 
,'4 

Related product manuals