EasyManua.ls Logo

Mark MSU 15 - Regulating System

Mark MSU 15
86 pages
Print Icon
To Next Page IconTo Next Page
To Next Page IconTo Next Page
To Previous Page IconTo Previous Page
To Previous Page IconTo Previous Page
Loading...
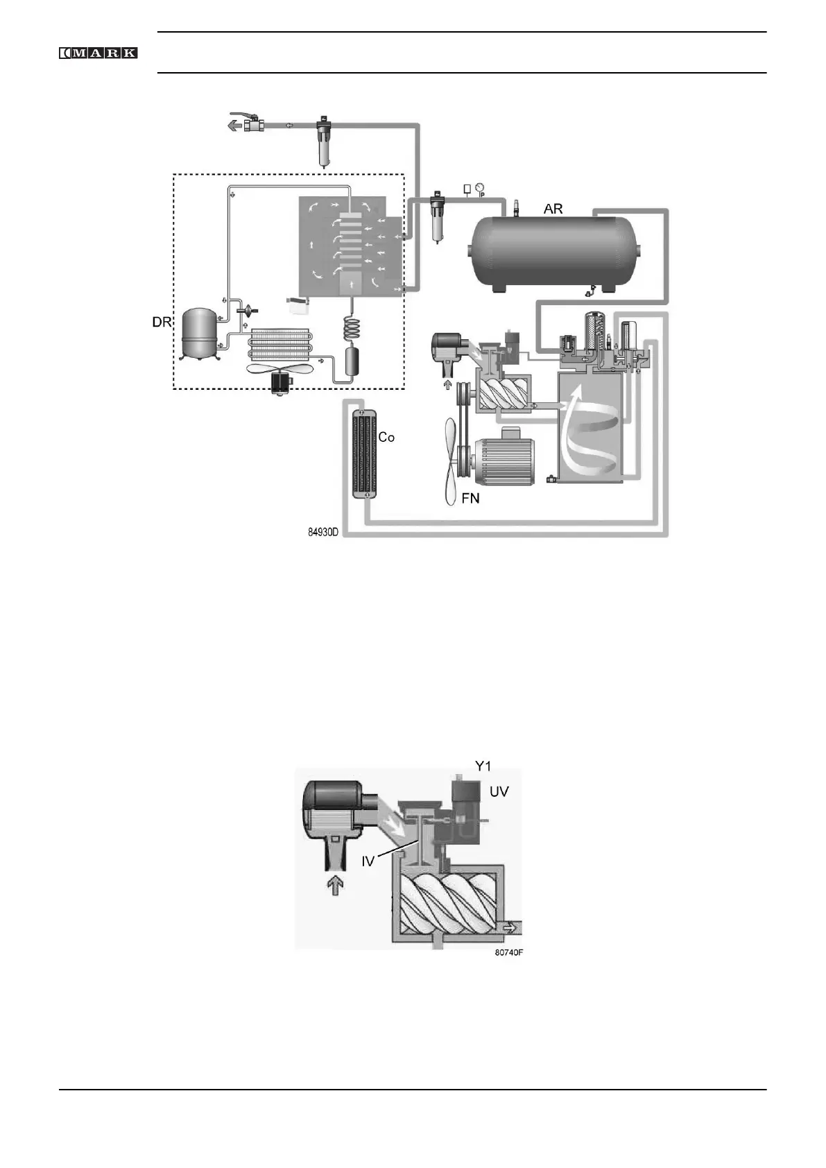
Cooling system, units with dryer
The cooling system of the version with dryer comprises oil cooler (Co), air receiver (AR) and fan
(FN).
The dryer (DR) has a separate cooling fan and an automatic condensate drain (see also section
Air dryer).
2.5 Regulating system
Detail view of unloader assembly (UA)
The main components of the regulating system are:
Instruction book
18 2920 7201 40

Table of Contents

Related product manuals