EasyManua.ls Logo

Marvel MLCP215 - Page 18

Marvel MLCP215
26 pages
Print Icon
To Next Page IconTo Next Page
To Next Page IconTo Next Page
To Previous Page IconTo Previous Page
To Previous Page IconTo Previous Page
Loading...
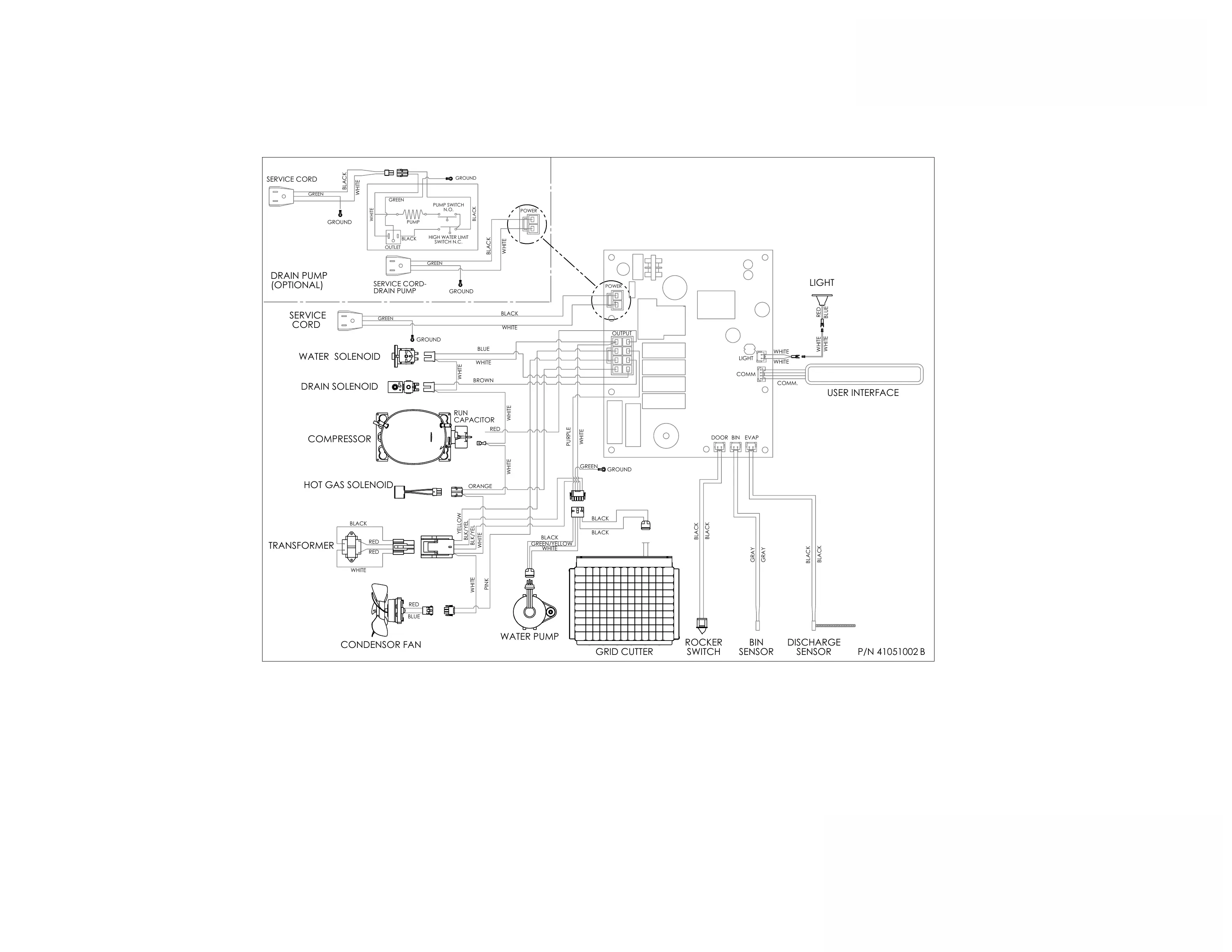
LIGHT
USER INTERFACE
ROCKER
SWITCH
SERVICE
CORD
WATER SOLENOID
DRAIN SOLENOID
COMPRESSOR
HOT GAS SOLENOID
TRANSFORMER
CONDENSOR FAN
WATER PUMP
GRID CUTTER
RUN
CAPACITOR
BIN
SENSOR
DISCHARGE
SENSOR
WHITE
GREEN
PUMP
PUMP SWITCH
N.O.
HIGH WATER LIMIT
SWITCH N.C.
OUTLET
BLACK
BLACK
SERVICE CORD-
DRAIN PUMP
POWER
WHITE
WHITE
WHITE
WHITE
WHITE
WHITE
BLACK
BLACK
WHITE
WHITE
RED
BLUE
RED
WHITE
WHITE
GROUND
GROUND
GREEN
GREEN
GROUND
GROUND
GREEN
GREEN
GROUND
BLACK
BLACK
BLACK
WHITE
WHITE
WHITE
YELLOW
PINK
ORANGE
BLUE
BROWN
PURPLE
BLK/YEL
BLK/YEL
BLACK
BLACK
RED
BLUE
BLACK
GREEN/YELLOW
WHITE
OUTPUT
DOOR
BIN
EVAP
COMM
LIGHT
GRAY
GRAY
BLACK
BLACK
COMM.
POWER
WHITE
BLACK
WHITE
RED
RED
P/N 41051002
WIRING DIAGRAM-
SATURN II
41051002
D WOODMAN
4-28-15
DRAIN PUMP
(OPTIONAL)
SERVICE CORD
B
REVISIONS
REV.
DESCRIPTION
DATE
BY
ECN
A
RELEASE TO PRODUCTION
4/30/2015
DWW
11798
B
WAS DOOR SENSOR
6/3/2016
SM
12274
MUST BE RoHS and CALIFORNIA
PROP. 65 COMPLIANT
AGA MARVEL
DO NOT SCALE DRAWING
SHEET 1 OF 1
B
UNLESS OTHERWISE SPECIFIED:
SCALE:
REF.
REV
DWG. NO.
C
SIZE
DRAWING NAME
NAME
DATE
DRAWN
MATERIAL SPEC.
DIMENSIONS ARE IN INCHES
TOLERANCES:
ANGULAR:
1
TWO PLACE DECIMAL
.03
THREE PLACE DECIMAL
.010
PROPRIETARY AND CONFIDENTIAL
THE INFORMATION CONTAINED IN THIS
DRAWING IS THE SOLE PROPERTY OF
AGA - MARVEL.
ANY REPRODUCTION IN PART OR
AS A WHOLE WITHOUT THE WRITTEN
PERMISSION OF NORTHLAND - MARVEL
IS PROHIBITED.
18

Related product manuals