EasyManua.ls Logo

Marvel MO15C Series - Page 49

Marvel MO15C Series
72 pages
Print Icon
To Next Page IconTo Next Page
To Next Page IconTo Next Page
To Previous Page IconTo Previous Page
To Previous Page IconTo Previous Page
Loading...
13
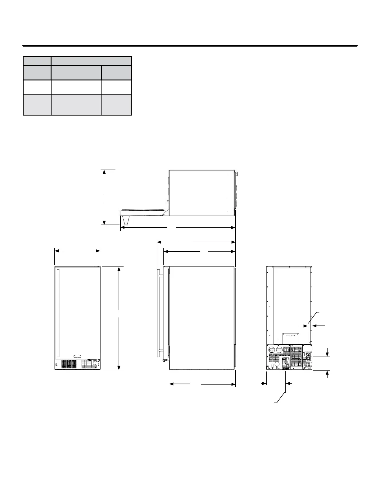
DIMENSIONS DU PRODUIT
** L’ouverture brute minimale nécessaire doit être supérieure à la
hauteur ajustée de l’armoire.
# Un circuit secteur dédié avec liaison de terre supportant 15 A est
nécessaire. Appliquez toutes les normes de construction locales à
l’installation de l’électricité et de l’appareil.
«F»
«D»
«E»
«J»
«G»
CL
Water
inlet
4
7
8 po
(12,4 cm)
1
1
4 po
(3,2 cm)
CL desagüe
Figure 21
(S) Porte pleine
montré
21
1
2 po
(54,6cm)
6
15
16 po
(17,6 cm)
«H»
DONNÉES DE PRODUIT
MODÈLE
BESOINS
ÉLECTRIQUES #
POIDS DU
PRODUIT
MA15C** 115V/60Hz/15A
100 lbs
(45,5 kg)
ML15C**
MO15C**
MP15CP*
115V/60Hz/15A
105 lbs
(47,7 kg)

Table of Contents

Related product manuals