EasyManua.ls Logo

Master MH-75T-KFA - Electrical Wiring Diagrams; Model-Specific Schematics

Master MH-75T-KFA
16 pages
Print Icon
To Next Page IconTo Next Page
To Next Page IconTo Next Page
To Previous Page IconTo Previous Page
To Previous Page IconTo Previous Page
Loading...
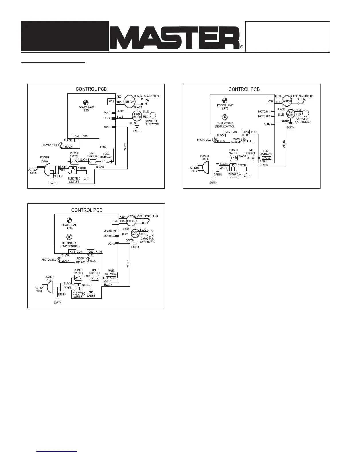
Wiring Diagrams
Page 14 Pinnacle Products International, Inc. Kerosene User’s Manual
Figure 22 Model MH-45-KFA
Figure 23 Model MH-75T-KFA
Figure 24 Model MH-135T/ 190T/ 215T-KFA
NEVER LEAVE HEATER
UNATTENDED WHILE BURN-
ING OR WHILE CONNECTED
TO A POWER SOURCE
Kerosene
Forced Air Heaters

Related product manuals