EasyManua.ls Logo

Maxx Cold MXCF-23FD - MXCR>23 FD Specific Wiring

Maxx Cold MXCF-23FD
20 pages
Print Icon
To Next Page IconTo Next Page
To Next Page IconTo Next Page
To Previous Page IconTo Previous Page
To Previous Page IconTo Previous Page
Loading...
13
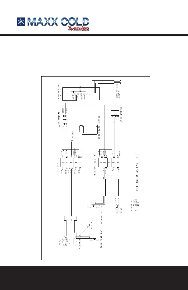
WIRING DIAGRAM
MXCR›23FD
Maxxx Cold Reach-ins Manual 2012VerA:Layout 1 6/7/2012 10:47 AM Page 15

Other manuals for Maxx Cold MXCF-23FD

Related product manuals