EasyManua.ls Logo

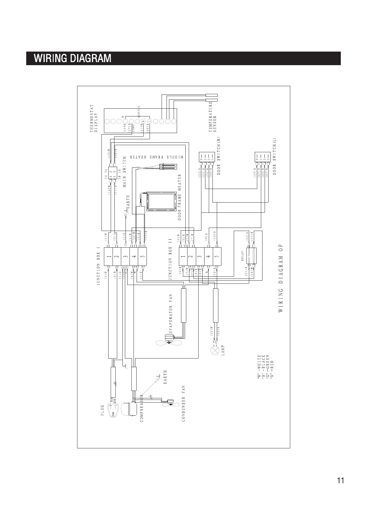
Maxx Cold MXCR-72FD - Wiring Diagram

Maxx Cold MXCR-72FD
16 pages
Print Icon
To Next Page IconTo Next Page
To Next Page IconTo Next Page
To Previous Page IconTo Previous Page
To Previous Page IconTo Previous Page
Loading...
Service and Installation Manual
MXCR-49 FD

Other manuals for Maxx Cold MXCR-72FD

Related product manuals