EasyManua.ls Logo

Maytag MAT14CSAGW0 - Drain System

Maytag MAT14CSAGW0
20 pages
Print Icon
To Next Page IconTo Next Page
To Next Page IconTo Next Page
To Previous Page IconTo Previous Page
To Previous Page IconTo Previous Page
Loading...
Recessed Area and Closet Installation Instructions
This washer may be installed in a recessed area or closet.
The installation spacing is in inches and is the minimum
allowable. Additional spacing should be considered for ease of
installation, servicing, and compliance with local codes and
ordinances.
If closet door is installed, the minimum unobstructed air openings
in the top and bottom are required. Louvered doors with
equivalent air openings are acceptable.
oloo
17"
(43.2 cm)
(Ocm) (Ocm)
j closetdoor
3100m2 *U J xtCm
24,,2 -_F 4"
1"./2.5cm,
rain.
Recessed front view Closet side view
48,2 _'
(310 cm=)*
Front view
24,2
(155cm2)*
3" (7.5 cm)
closet
0
door
3" (7.6cm)
i
*Opening is the minimum for a closet door.
Louvered doors with equivalent air openings are acceptable.
Additional spacing should be considered for the ease of
installation and servicing.
Additional clearances may be required for wall, door and floor
moldings.
Additional spacing of 1" (2.5 cm) on all sides of the washer is
recommended to reduce noise transfer.
Companion spacing should also be considered.
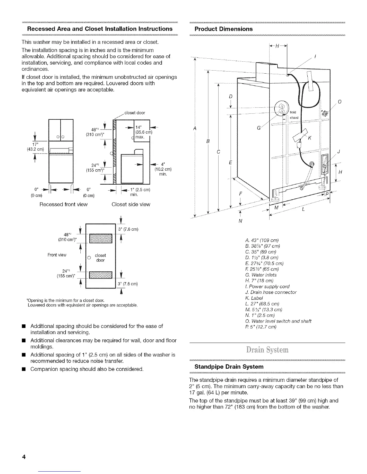
Product Dimensions
N
A. 43" (109 cm)
S. 38_" (97 cm)
C. 35" (89 cm)
D. 1½"(3.8cm)
E. 27¾" (70.5 cm)
fi 25 ½" (65 cm)
G. Water inlets
H. 7" (18 cm)
I. Power supply cord
J. Drain hose connector
K. Label
L. 27" (68.5 cm)
M. 5 ¼" (13.3 cm)
N. 1"(2.5cm)
O. Water level switch and shaft
R 5" (12.7 cm)
.......
Standpipe Drain System
The standpipe drain requires a minimum diameter standpipe of
2" (5 cm). The minimum carry-away capacity can be no less than
17 gal. (64 L) per minute.
The top of the standpipe must be at least 39" (99 cm) high and
no higher than 72" (183 cm) from the bottom of the washer.

Related product manuals