EasyManua.ls Logo

McCall 1-1070F - Dimensions; Electrical Specifications; Options

McCall 1-1070F
2 pages
Print Icon
To Previous Page IconTo Previous Page
To Previous Page IconTo Previous Page
Loading...
McCall Refrigeration / 81 West Holly Street / Parsons, TN 38363
Phone (731) 847-5570 / Fax (731) 847-9012 / 1-888-REACH-IN (1-888-732-2446) / www.mccallrefrigeration.com
January 2007 / Printed in U.S.A.
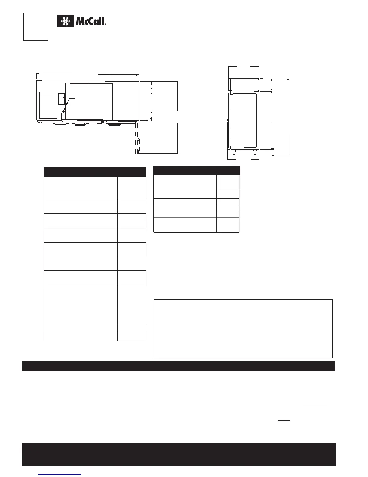
DIMENSIONS
Three
Section
Net Capacity: 72 cu.ft.
Width: 82.5"
Height: with legs or casters 84.5"
Depth: cabinet only -
including controls 31.18"
Depth: over hardware -
reach-in 34.81"
Depth: door open 90° -
reach-in 57.81"
Net Door Opening:
width 21.25"
Net Door Opening:
height -full doors 58"
Net Door Opening:
height - half doors 27"
Adjustable Shelves 9
Shipping Weight
Model 1-1070
Model 4-4070
Model 2-2070
Model 1-1070
4-4070
2-2070
815 lbs.
715 lbs.
700 lbs.
REACH-IN REFRIGERATORS
(3 SECTION)
82.5
31.18
57.81
POWER
CONNECTION
Notes: (R) Remote cabinets are equipped for 20 amp
permanent connection.
*First 3 digits omitted.
**Based on 90°F ambient and 20°F evaporating temperature.
Specifications subject to change without notice.
Certain options and accessories may affect UL/NSF approval and
electrical requirements.
TOP VIEW
Three Section
Base Model Number* 70
Compressor HP 1/2
Voltage (60 hz, 1 ph) 115
Total Amperage: 11
BTU/HR 3012
Cord connection -
ANSI 5-20P
ELECTRICAL
Bidding Specifications
McCall Reach In Cabinets shall have:
Top mounted compressor. Automatic defrost. Expansion Valve. Hot gas condensate evaporator.
Matched and balanced system. Exclusive Windrunner Gradient Air Displacement Process.
Stainless steel front, doors and floor. Self-closing all metal doors with welded and polished
corners. Cam-lift hinges with concealed light switches. Adjustable doorstops. Exterior digital
thermometer (1000 series) dial thermometer (2000-4000 series). Chrome-plated door handles
with security lock. Stainless steel pilasters (1000 series) & aluminum pilasters (2000-4000
series) adjustable on 1" centers. Three epoxy coated shelves per section. 6" adjustable legs.
Master Power Switch. R-134a refrigerant. 72 cubic ft. capacity.
Dimensions: Width=82.5"/Height=84.5"
33.5
13.56
64.93
34.81
84.5
SIDE VIEW
OPTIONS
E Electric condensate
evaporator.
Finished back.
Tray slides
Stainless steel shelves.
extra epoxy
coated shelves.
Left or right door hinge.
Digital thermometer
Description
Model Suffix
Description
Model Suffix
Description
Model Suffix
AIA #
A Audio visual alarm.
R Remote.
P PassThru
(see Pass-Thru Refrigerators
specification sheet)
01 Half height doors Qty.______
C Heavy-duty 6 inch casters
(on cord connected models only).
GD Glass Doors
(See Glass Doors Reach In
Refrigerators specification
sheet)
6
16002

Related product manuals