EasyManua.ls Logo

McQuay AGS 225D - Page 80

McQuay AGS 225D
82 pages
Print Icon
To Next Page IconTo Next Page
To Next Page IconTo Next Page
To Previous Page IconTo Previous Page
To Previous Page IconTo Previous Page
Loading...
80 OM AGSD-1
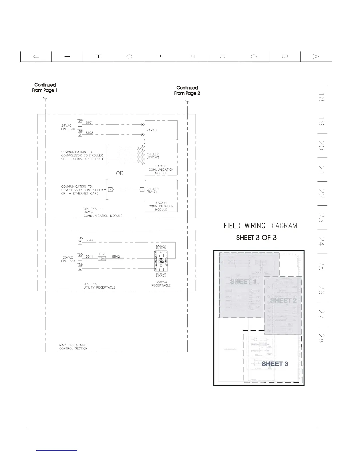
FIELD WIRING DIAGRAM continued

Related product manuals