EasyManua.ls Logo

McQuay M4MC125D - Page 89

McQuay M4MC125D
177 pages
Print Icon
To Next Page IconTo Next Page
To Next Page IconTo Next Page
To Previous Page IconTo Previous Page
To Previous Page IconTo Previous Page
Loading...
88
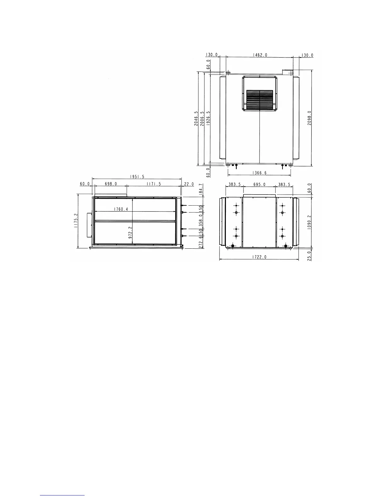
MODEL : MDB 500D4/DR4
NOTE :
1) WITH SEQUENTIAL CONTROLLER
2) VERTICAL AIR DISCHARGE

Related product manuals