EasyManua.ls Logo

McQuay M4MC125D - MODEL: MDB 125 DR vs. MMC 125 DR (WITH U1-125 SLM3 HANDSET); MODEL: MDB 150 DR vs. MMC 150 DR (WITH U1-125 SLM3 HANDSET)

McQuay M4MC125D
177 pages
Print Icon
To Next Page IconTo Next Page
To Next Page IconTo Next Page
To Previous Page IconTo Previous Page
To Previous Page IconTo Previous Page
Loading...
97
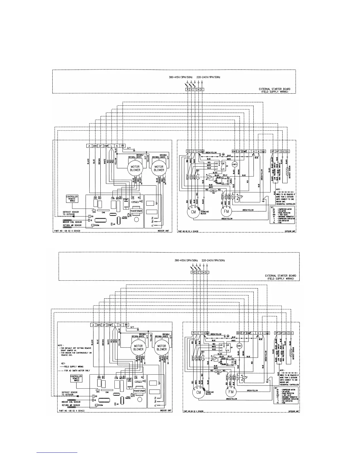
Wiring Diagrams (Heatpump)
MODEL : MDB 075DR vs. MMC 075DR (WITH U1.4 / SLM3 HANDSET)
MODEL : MDB 100DR vs. MMC 100DR (WITH U1.4 / SLM3 HANDSET)

Related product manuals