EasyManua.ls Logo

McQuay MDB200B2 - Page 68

McQuay MDB200B2
163 pages
Print Icon
To Next Page IconTo Next Page
To Next Page IconTo Next Page
To Previous Page IconTo Previous Page
To Previous Page IconTo Previous Page
Loading...
67
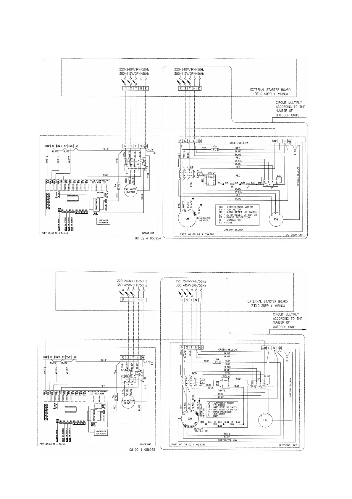
MODEL : INDOOR - MDB 300B3 & MDB 350B3 (WITH SEQUENTIAL CONTROLLER)
OUTDOOR – MMC 100B x 3 / MMC 100C x 3 & (MMC100B/C x 1 + MMC125B x 2)
MODEL : INDOOR - MDB 450B3 (WITH SEQUENTIAL CONTROLLER)
OUTDOOR – MMC 150C x 3

Related product manuals