EasyManua.ls Logo

McQuay MDB200B2 - Page 69

McQuay MDB200B2
163 pages
Print Icon
To Next Page IconTo Next Page
To Next Page IconTo Next Page
To Previous Page IconTo Previous Page
To Previous Page IconTo Previous Page
Loading...
68
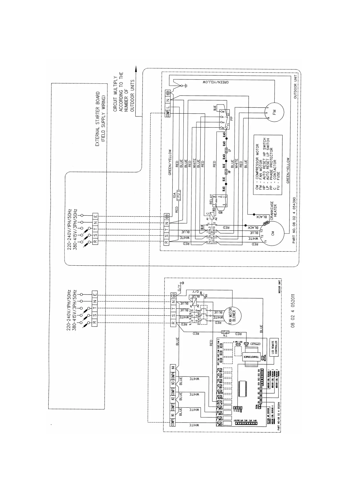
MODEL : INDOOR - MDB 400B4 & MDB 500B4 (WITH SEQUENTIAL CONTROLLER)
OUTDOOR – MMC 100B x 4 & MMC 125B x 4

Related product manuals