EasyManua.ls Logo

McQuay MDB200B2 - Page 75

McQuay MDB200B2
163 pages
Print Icon
To Next Page IconTo Next Page
To Next Page IconTo Next Page
To Previous Page IconTo Previous Page
To Previous Page IconTo Previous Page
Loading...
74
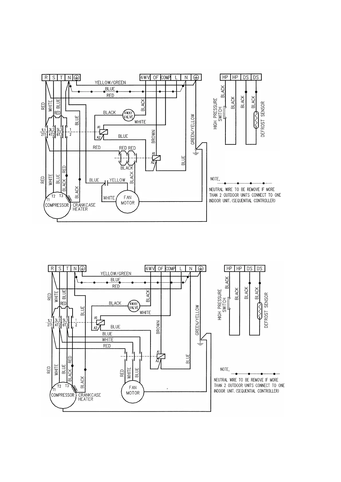
OUTDOOR (EXPORT)
MODEL : MMC 075CR / 100BR
(FOR SEQUENTIAL CONTROLLER) – VERSION 1
MODEL : MMC 125BR (EXPORT)
(FOR SEQUENTIAL CONTROLLER) – VERSION 1
Note :
- With auto pressure control
DANFOSS magnetic contactor
- Headline outdoor fan motor
(single phase)
Note :
- With auto pressure control
DANFOSS magnetic contactor
- Headline outdoor fan motor

Related product manuals