EasyManua.ls Logo

McQuay MDB200B2 - Page 76

McQuay MDB200B2
163 pages
Print Icon
To Next Page IconTo Next Page
To Next Page IconTo Next Page
To Previous Page IconTo Previous Page
To Previous Page IconTo Previous Page
Loading...
75
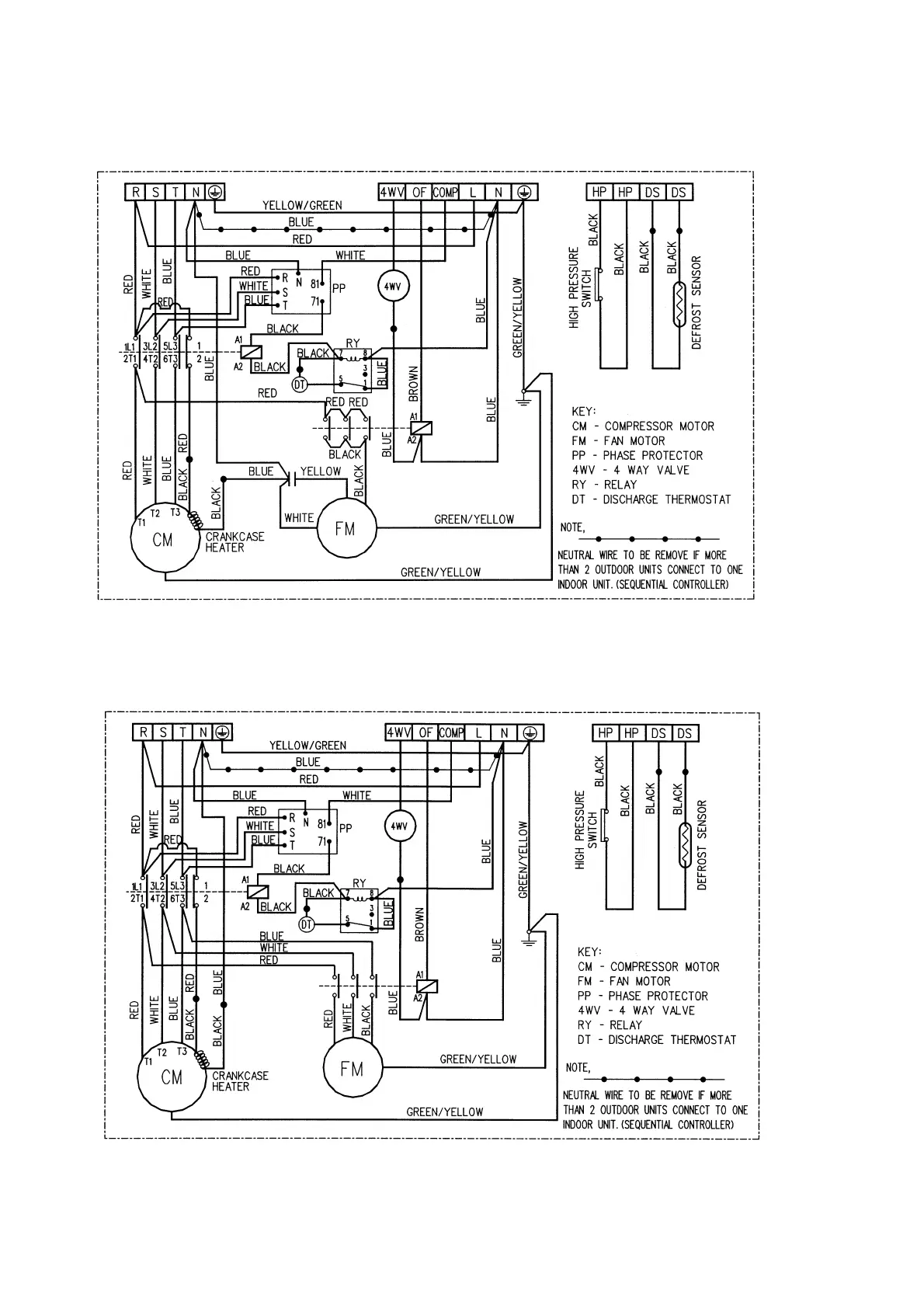
OUTDOOR (HEATPUMP)
MODEL : MMC 075CR / 100BR (FOR SEQUENTIAL CONTROLLER WITH PHASE
PROTECTOR AND DISCHARGE THERMOSTAT) – VERSION 2
MODEL : MMC 125BR (FOR SEQUENTIAL CONTROLLER WITH PHASE PROTECTOR AND
DISCHARGE THERMOSTAT) – VERSION 2
Note :
- With auto pressure
control DANFOSS
magnetic contactor
- Headline outdoor
fan motor (single
phase)
Note :
- With auto pressure
control DANFOSS
magnetic contactor
- Headline outdoor
fan motor

Related product manuals