EasyManua.ls Logo

McQuay MWM 007F - Page 56

McQuay MWM 007F
108 pages
Print Icon
To Next Page IconTo Next Page
To Next Page IconTo Next Page
To Previous Page IconTo Previous Page
To Previous Page IconTo Previous Page
Loading...
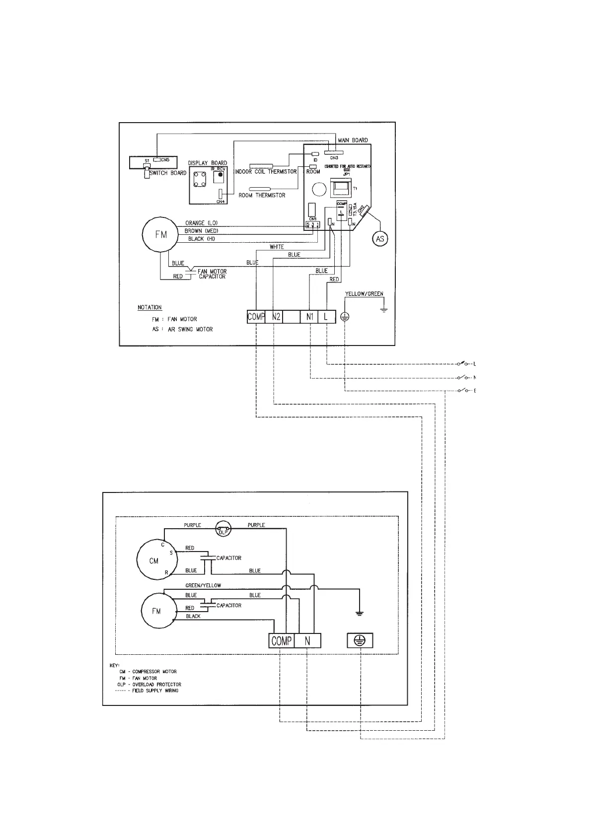
Indoor Unit
Model : MWM 010F (D2.0 I.C.)
1 PHASE
220 - 240V
50 Hz
Outdoor Unit
Model : MLC 010C
54

Related product manuals