EasyManua.ls Logo

McQuay MWM 007F - Page 58

McQuay MWM 007F
108 pages
Print Icon
To Next Page IconTo Next Page
To Next Page IconTo Next Page
To Previous Page IconTo Previous Page
To Previous Page IconTo Previous Page
Loading...
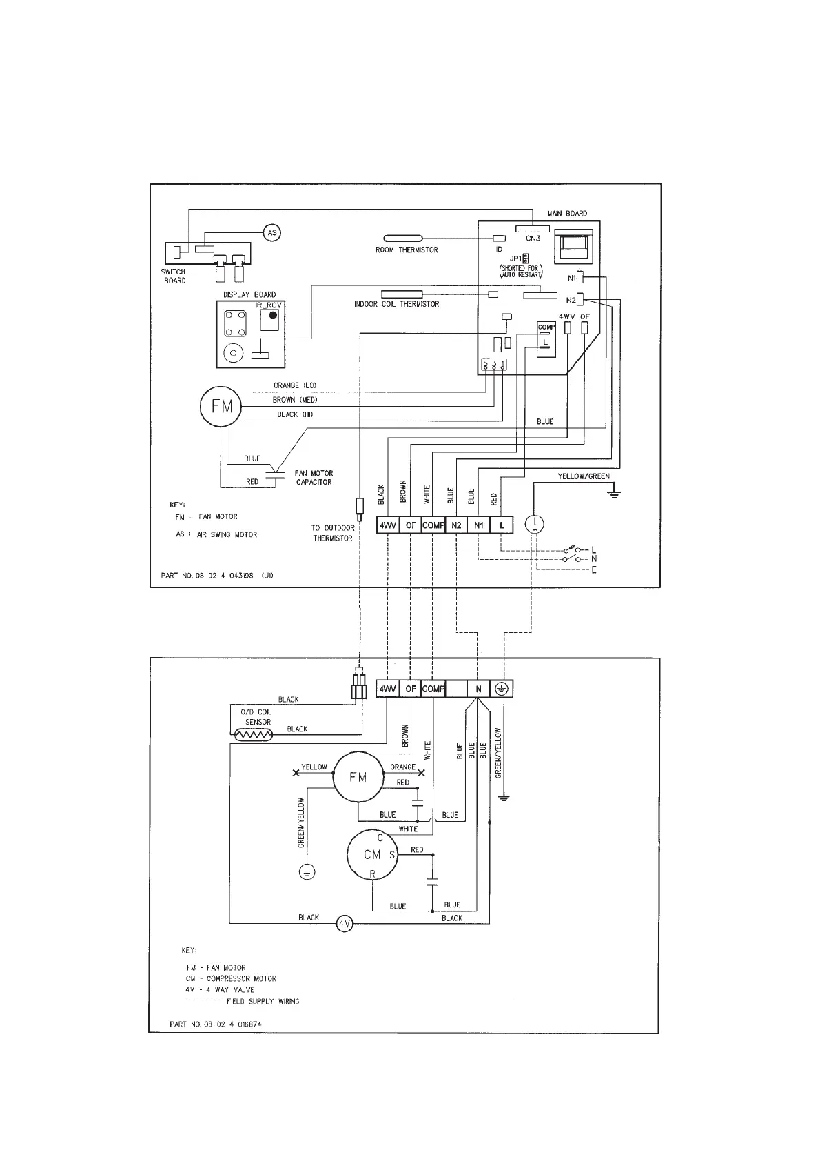
Indoor Unit
Model : MWM 020FR / 025FR (U1.4 I.C.)
Outdoor Unit
Model : MLC 020BR / 025BR
M4LC 020BR / 025BR
1 PHASE
220 - 240V
50 Hz
56

Related product manuals