EasyManua.ls Logo

McQuay MWM 007F - Page 59

McQuay MWM 007F
108 pages
Print Icon
To Next Page IconTo Next Page
To Next Page IconTo Next Page
To Previous Page IconTo Previous Page
To Previous Page IconTo Previous Page
Loading...
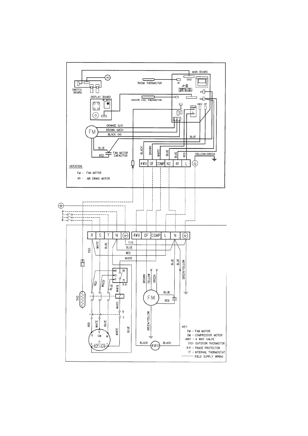
Indoor Unit
Model : MWM 020FR / 025FR (U1.4 I.C.)
3 PHASE
380 - 415V
50 Hz
57
Outdoor Unit
Model : MLC 020BR / 025BR
M4LC 020BR / 025BR

Related product manuals