EasyManua.ls Logo

McQuay MWM-LW - Page 97

McQuay MWM-LW
122 pages
To Next Page IconTo Next Page
To Next Page IconTo Next Page
To Previous Page IconTo Previous Page
To Previous Page IconTo Previous Page
Loading...
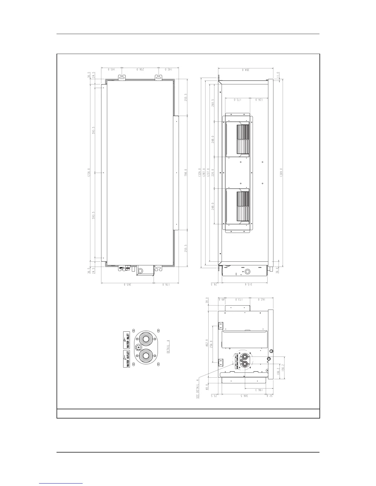
Outlines & Dimensions
94
Model: MCC050CW (Left Piping)
Note: Dimension in mm

Related product manuals