EasyManua.ls Logo

McQuay SWT028C - Actuator Control Output Schematic

McQuay SWT028C
44 pages
Print Icon
To Next Page IconTo Next Page
To Next Page IconTo Next Page
To Previous Page IconTo Previous Page
To Previous Page IconTo Previous Page
Loading...
26 IM709
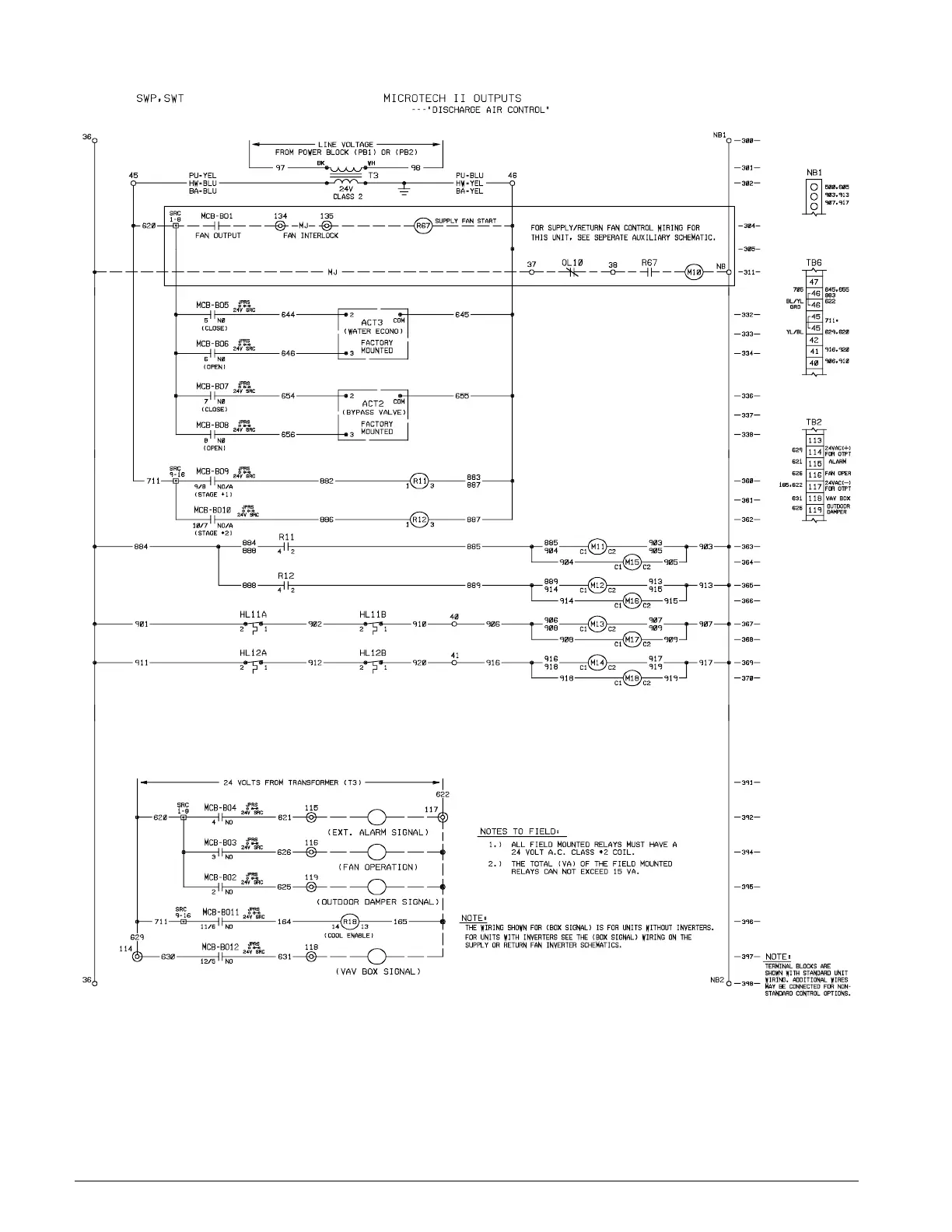
Figure 22. Output Schematic, Actuator Control

Table of Contents

Related product manuals