EasyManua.ls Logo

MERIH DDC70 - Connection of Electrical Door Locking Contact DDC80

MERIH DDC70
150 pages
Print Icon
To Next Page IconTo Next Page
To Next Page IconTo Next Page
To Previous Page IconTo Previous Page
To Previous Page IconTo Previous Page
Loading...
Her türlü değişiklik hakkı saklıdır.
KLV-09/Yayın Tarihi : 09.03.2023/Revizyon No: 00 /Revizyon Tarihi:
Sayfa :
Güncel dokümanlar için www.merihasansor.com adresini ziyaret ediniz!
Belirtilmeyen tüm ölçü birimleri milimetredir.(mm)
KULLANIM KILAVUZU
DDC70/DDC80
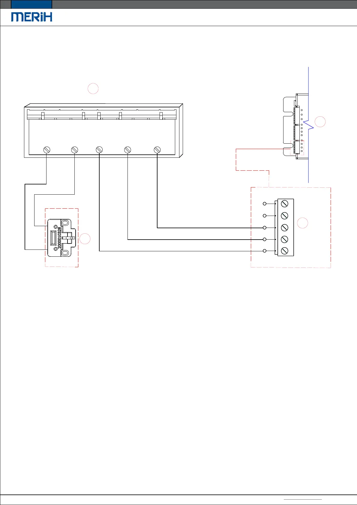
DDC80 Kapı Elektriksel Kilitleme Kontağı Bağlantısı
1-Ana Kumanda Panosu I - Kilit Klemens Girişi IV - Kapama Sinyali (+) 24 VDC
2-DDC70 Kapı Sürücü Kartı II - Kilit Kontak Dönüşü V - Açma Sinyali (+) 24 VDC
3-Merih Fiş Kontak III - (-) 24 VDC
4-DDC70 Kart Giriş Röleleri
Kapı elektriksel kilitleme kontağı ile ana kumanda panosuna kabin kapısı hakkında açık-kapalı konum bilgisi
iletilir.
Her türlü değişiklik hakkı saklıdır.
KLV-09/Yayın Tarihi : 09.03.2023/Revizyon No: 00 /Revizyon Tarihi:
36
I4
I3
I2
I1
ICOM
I
II
III
IV
V
1
3
4
2