EasyManua.ls Logo

MERIH DDC70 - Door Electrical Locking Contact; DDC70 Connection of Electrical Door Locking Contact

MERIH DDC70
150 pages
Print Icon
To Next Page IconTo Next Page
To Next Page IconTo Next Page
To Previous Page IconTo Previous Page
To Previous Page IconTo Previous Page
Loading...
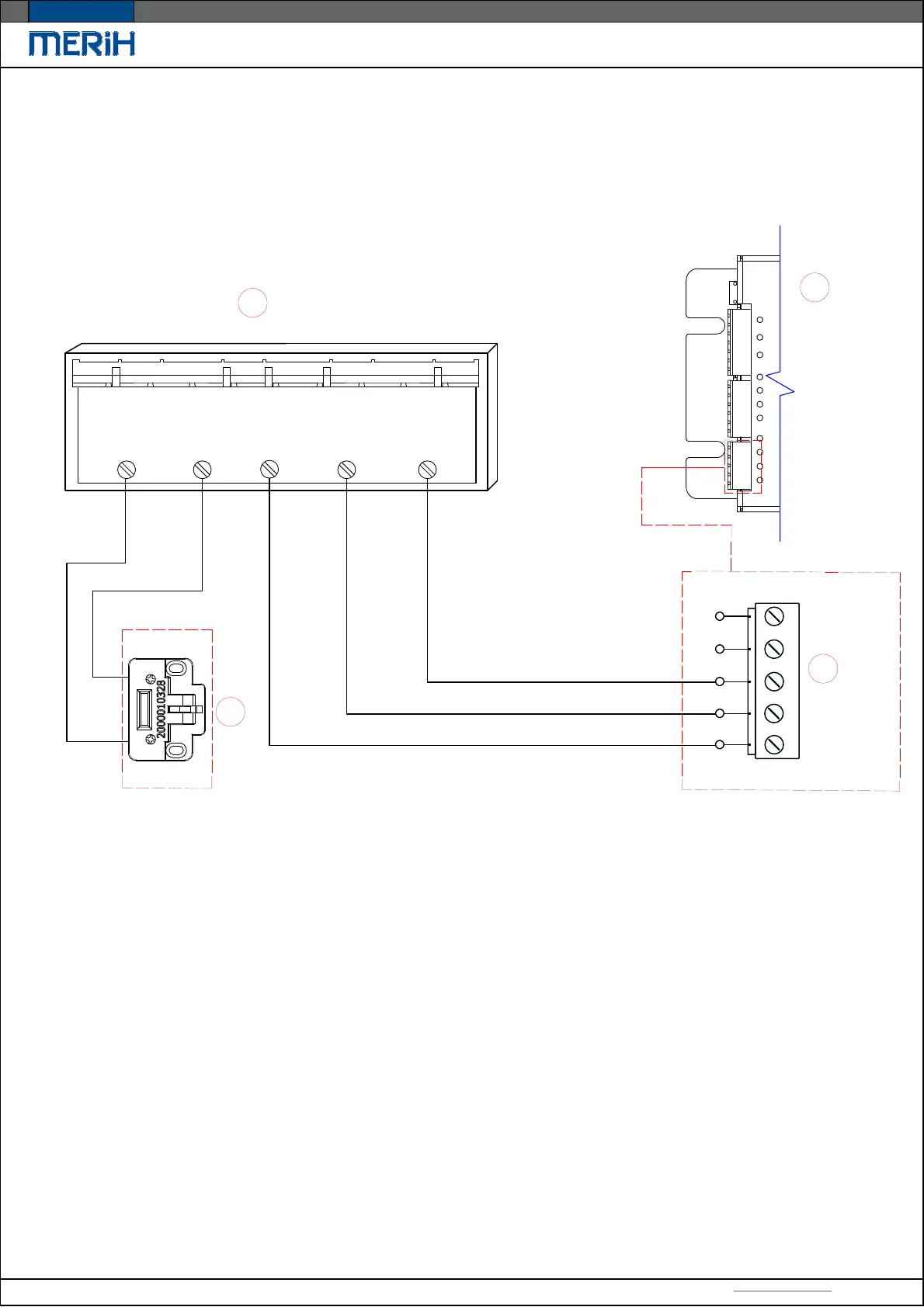
6.2.Kapı Elektriksel Kilitleme Kontağı
DDC70 Kapı Elektriksel Kilitleme Kontağı Bağlantısı
Her türlü değişiklik hakkı saklıdır.
KLV-09/Yayın Tarihi : 09.03.2023/Revizyon No: 00 /Revizyon Tarihi:
Sayfa :
Güncel dokümanlar için www.merihasansor.com adresini ziyaret ediniz!
Belirtilmeyen tüm ölçü birimleri milimetredir.(mm)
KULLANIM KILAVUZU
DDC70/DDC80
Her türlü değişiklik hakkı saklıdır.
KLV-09/Yayın Tarihi : 09.03.2023/Revizyon No: 00 /Revizyon Tarihi:
35
I4
I3
I2
I1
ICOM
I
II
III
IV
V
1
3
4
2