EasyManua.ls Logo

MERIH DDC70 - Safety Contacts Connection; DDC70 Car Door Bypass Assembly

MERIH DDC70
150 pages
Print Icon
To Next Page IconTo Next Page
To Next Page IconTo Next Page
To Previous Page IconTo Previous Page
To Previous Page IconTo Previous Page
Loading...
Her türlü değişiklik hakkı saklıdır.
KLV-09/Yayın Tarihi : 09.03.2023/Revizyon No: 00 /Revizyon Tarihi:
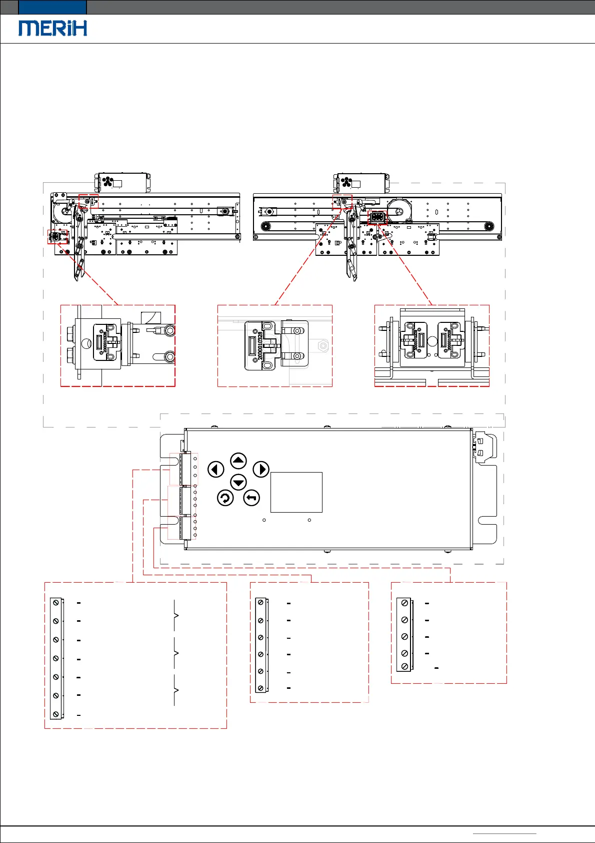
6. Safety Contacts Connection
DDC70 Car Door Bypass Assembly
Her türlü değişiklik hakkı saklıdır.
KLV-09/Yayın Tarihi : 09.03.2023/Revizyon No: 00 /Revizyon Tarihi:
Sayfa :
Güncel dokümanlar için www.merihasansor.com adresini ziyaret ediniz!
Belirtilmeyen tüm ölçü birimleri milimetredir.(mm)
DDC70/DDC80
31
Central Doors
Telescopic Doors
Door electrical safety device
Door structures safety device
OUTPUT
I
II
III
IV
V
VI
VII
NC -
CLOSED LIMIT SWITCH
NO -
OPENED LIMIT SWITCH
NC -
CLOSED LIMIT SWITCH
NO -
OPENED LIMIT SWITCH
NC -
CLOSED LIMIT SWITCH
NO -
OPENED LIMIT SWITCH
OCom (-)
COMMON CONTACT
DOOR OPENED
RELAY
DOOR CLOSED
RELAY
BLOCKAGE
RELAY
SENSOR
24V
S4
S3
S2
S1
GND
DC
ON FLOOR SIGNAL
PHOTOCELL
(-) TERMINAL
OPENED LIMIT SWITCH
CLOSED LIMIT SWITCH
I4
I3
I2
I1
ICOM
EMERGENCY CLOSED
EMERGENCY OPENED
OPENED
CLOSED
(-) TERMINAL
INPUT
Note-1: For sensor
connection,
From the Settings -
Socket - Sensor
Socket menu
Connection is made
according to NO
and NC output
terminals.
WI-FI POWER
WI-FI POWER
WI-FI POWER
Door monitoring device
USER GUIDE