EasyManua.ls Logo

MERIH DDC70 - DDC80 Car Door Bypass Assembly

MERIH DDC70
150 pages
Print Icon
To Next Page IconTo Next Page
To Next Page IconTo Next Page
To Previous Page IconTo Previous Page
To Previous Page IconTo Previous Page
Loading...
Her türlü değişiklik hakkı saklıdır.
KLV-09/Yayın Tarihi : 09.03.2023/Revizyon No: 00 /Revizyon Tarihi:
Sayfa :
Güncel dokümanlar için www.merihasansor.com adresini ziyaret ediniz!
Belirtilmeyen tüm ölçü birimleri milimetredir.(mm)
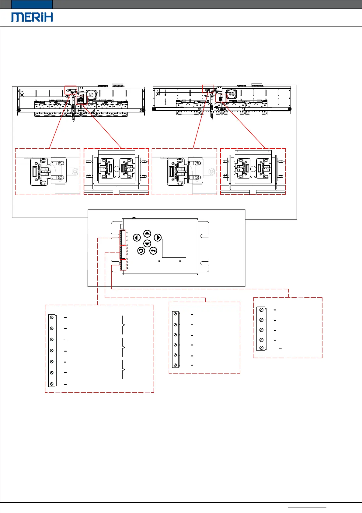
DDC70/DDC80
DDC80 Kabin Kapısı Devre Dışı Bırakan (Bypas) Tertibatı
Her türlü değişiklik hakkı saklıdır.
KLV-09/Yayın Tarihi : 09.03.2023/Revizyon No: 00 /Revizyon Tarihi:
32
WI-FI POWER
OUTPUT
I
II
III
IV
V
VI
VII
-
CLOSED LIMIT SWITCH
N-
OPENED LIMIT SWITCH
NC -
CLOSED LIMIT SWITCH
NO -
OPENED LIMIT SWITCH
NC -
CLOSED LIMIT SWITCH
NO -
OPENED LIMIT SWITCH
OCom (-)
COMMON CONTACT
DOOR OPENED
RELAY
DOOR CLOSED
RELAY
BLOCKAGE
RELAY
SENSOR
24V
S4
S3
S2
S1
GND
DC
ON FLOOR SIGNAL
PHOTOCELL
(-) TERMINAL
OPENED LIMIT SWITCH
CLOSED LIMIT SWITCH
I4
I3
I2
I1
ICOM
EMERGENCY CLOSED
EMERGENCY OPENED
OPENED
CLOSED
(-) TERMINAL
INPUT
Note-1: For sensor
connection,
From the Settings -
Socket - Sensor
Socket menu
Connection is made
according to NO and
NC output ends.
Central Doors Central Doors
USER GUIDE