EasyManua.ls Logo

MICRODOS Panel Series - F raccordement 1;2 ‘’; E conexiónes 1;2

Default Icon
16 pages
Print Icon
To Next Page IconTo Next Page
To Next Page IconTo Next Page
To Previous Page IconTo Previous Page
To Previous Page IconTo Previous Page
Loading...
I Collegare l’altro capo del tubo PVC 4x6 al raccordo ½” e l’altro capo
del tubo PE 4X6 alla valvola iniezione nella maniera che segue . Svitare la
ghiera dal raccordo e far passare il tubo attraverso la ghiera, quindi il ferma
tubo ed infine inserire con un’azione contemporanea di pressione e
rotazione il tubo fino in fondo sull’attacco conico del raccordo
(portagomma); bloccare il tutto serrando a fondo la ghiera.
UK Connect the other end of the PVC 4x6 hose to the 1/2 “ nipple and the
other end of PE 4X6 hose to the injection valve as follows. Unscrew the nut
and purge the hose through it, then the hose guard and finally push the
hose into the conic connection rotating until the end. Screw the nut..
F Lier l’autre extrémité du tuyau en PVC 4x6 à le raccordement 1/2" et l’autre extrémité du tuyau en PE 4x6 à la clapet
d’injection de la manière suivante . Dévisser l'embout du raccordement et faire passer le tuyau à travers l'embout, donc
l'adaptateur et finalement insérer avec une action contemporaine de pression et rotation au bout le tuyau fin sur l'attaque
conique du raccord( porte gomme); bloquer le tout en serrant au fond l'embout.
E Conectar el otro extremo de tubo PVC 4x6 a la conexión 1/2" y el otro extremo de tubo PE a la Válvula de inyección de la
seguiente manera . Desenroscar la tuerca desde el racor y pasar el tubo a través de la tuerca también el adaptador y por fin
insertar hasta el final con una acción contemporánea de presión y rotación el tubo sobre el ataque cónico bloquear apretando
firmemente la tuerca.
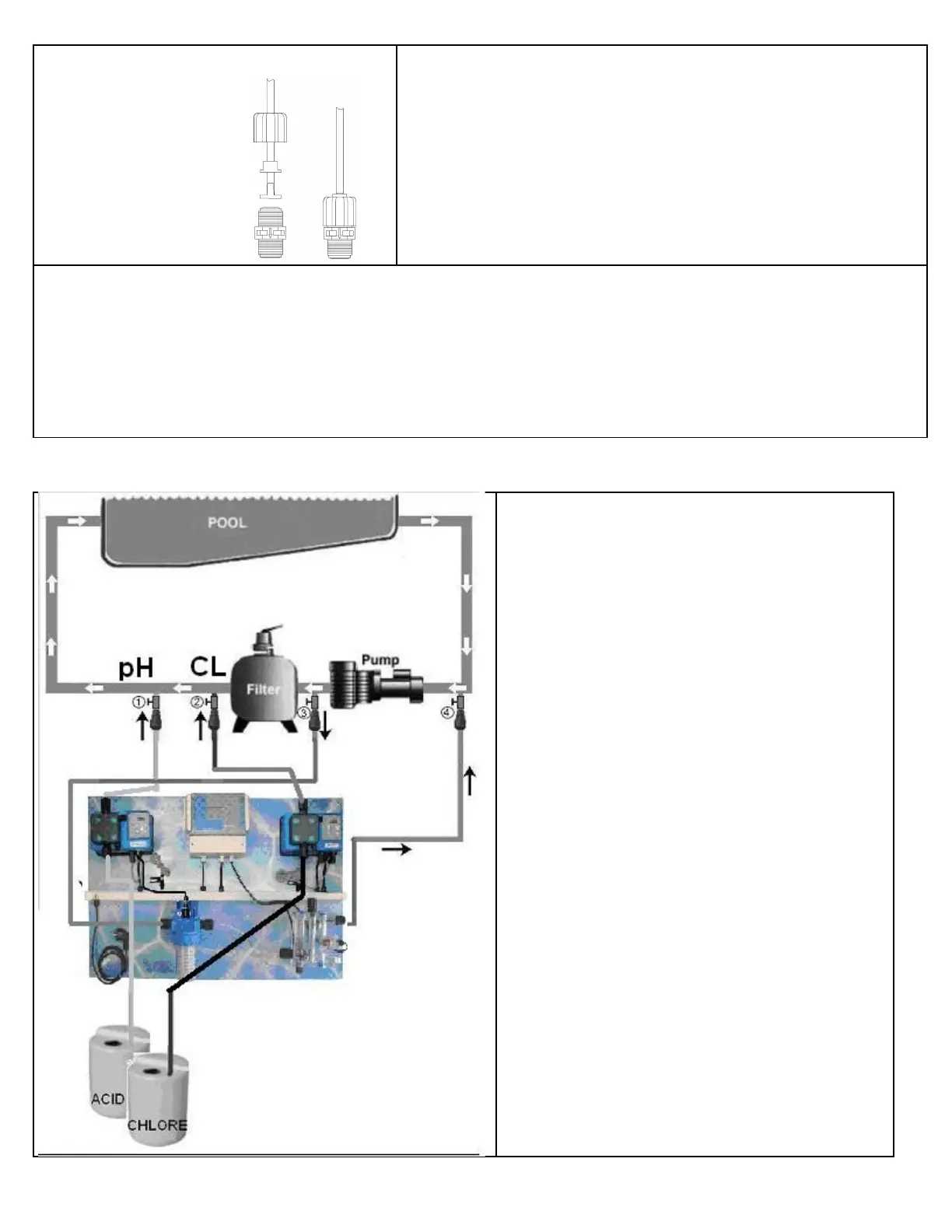
I SCHEMA INSTALLAZIONE UK INSTALLATION SCHEME
F SCHEMA D’INSTALLATION E ESQUEMA DE INSTALACION
I
E’ consigliato seguire lo schema di figura per
l’installazione del pannello.
1;2;3 e 4 sono rubinetti da installare per agevolare
l’installazione e la manutenzione del sistema piscina.
UK
We advice to follow the installation scheme of the panel
shown in the figure.
1, 2, 3 and 4 are taps to be installed to facilitate the
installation and maintenance of the pool sistem.
F
Nous conseillons de suivre le schéma indiqué à
l'installation du panneau.
1, 2, 3 et 4 sont des robinets à être installé pour faciliter
l'installation et l'entretien du systéme de la piscine.
E
Aconsejamos de seguir el esquema de figura para la
instalación del panel.
1, 2, 3 y 4 son los toques que se instale para facilitar la
instalación y el mantenimiento del sistema piscina.
I PROGRAMMAZIONI DI FABBRICA UK DEFAULT SETTINGS
Rev 1.0 Cod.00.007.907
7
I raccordo 1/2 “
UK 1/2” nipple
F raccordement 1/2 ‘’
E conexiónes 1/2"