EasyManua.ls Logo

Microh ULTRA TRINITY330 - Circuit Connecting Diagram; Internal Circuit Diagram

Default Icon
19 pages
Print Icon
To Next Page IconTo Next Page
To Next Page IconTo Next Page
To Previous Page IconTo Previous Page
To Previous Page IconTo Previous Page
Loading...
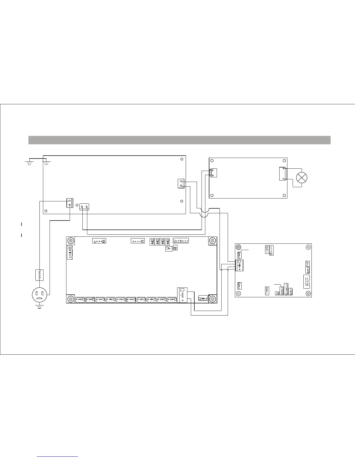
Circuit connecting diagram
15
J14
J7
J5
J3
J2
J6
J4
J12
J8
J10
J13
J1
J11
WX
DPY
GND
VCC
DMX
MT- Y
M T- X
OP-Y
OP-X
B
AT
BU
S
LAMPWK
PRISM R
GOBO R
PRISM
GOBO
FROST
COLOR
STROBE
ZOOM
FOCUS
BUS
28V
GND
MCU3
MCU2
+ -
FAN
MCU1
STROBE
J7
J13
XH- 2A
J10
J16
J3
J24
J1
J4
J2
J12
J5
J6
J31
MCU
L
N
LAMP
GND
VCC
J11J23
J22
J21
J27
J26
J19
J9
J8
Electronic ballast
Switched power supply
Fuse 5A
Power input
AC90~240V
50~60Hz
X Y Drive board
Power input
X axis motor
Y axis mot or
Programmer port
Lithium bat tery port
Power
input
output
Connect the
LCD display line
Signal line
Ele ctron ic ball ast
con trol li ne
Therm os tat