EasyManua.ls Logo

Midea M4OC-36HRFN1-M - 1 Drive 4 Outdoor Unit Wiring

Midea M4OC-36HRFN1-M
128 pages
To Next Page IconTo Next Page
To Next Page IconTo Next Page
To Previous Page IconTo Previous Page
To Previous Page IconTo Previous Page
Loading...
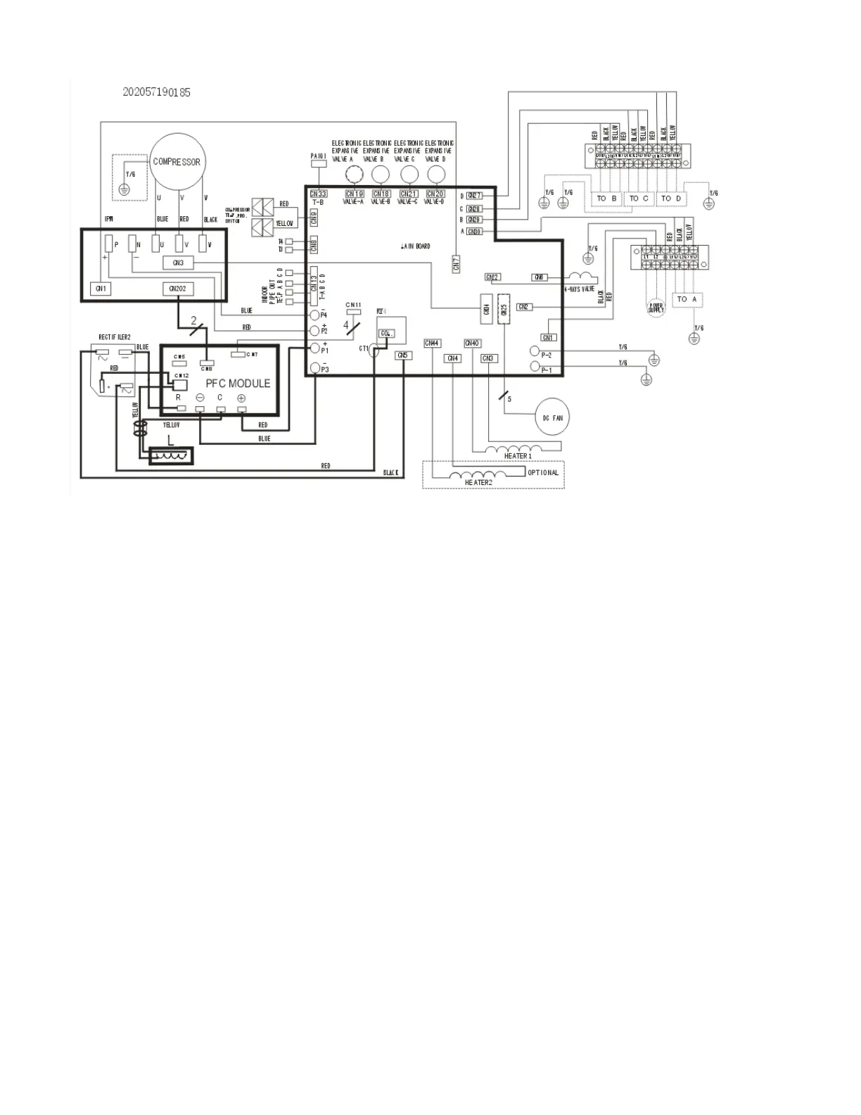
8.3 Wiring diagram of 1 drive 4 outdoor
M4OC-36HRFN1-M

Related product manuals