EasyManua.ls Logo

Midea MCA3-18CRN1-QB5

Midea MCA3-18CRN1-QB5
264 pages
To Next Page IconTo Next Page
To Next Page IconTo Next Page
To Previous Page IconTo Previous Page
To Previous Page IconTo Previous Page
Loading...
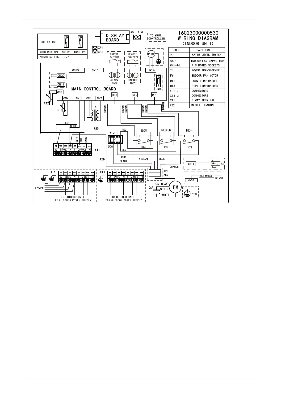
Wiring Diagrams
High Static Pressure Duct Type 85
MHG-48HWN1-R

Table of Contents

Related product manuals