EasyManua.ls Logo

Midea MCD-18HRFN1-QRC8 - Dimensions

Midea MCD-18HRFN1-QRC8
159 pages
To Next Page IconTo Next Page
To Next Page IconTo Next Page
To Previous Page IconTo Previous Page
To Previous Page IconTo Previous Page
Loading...
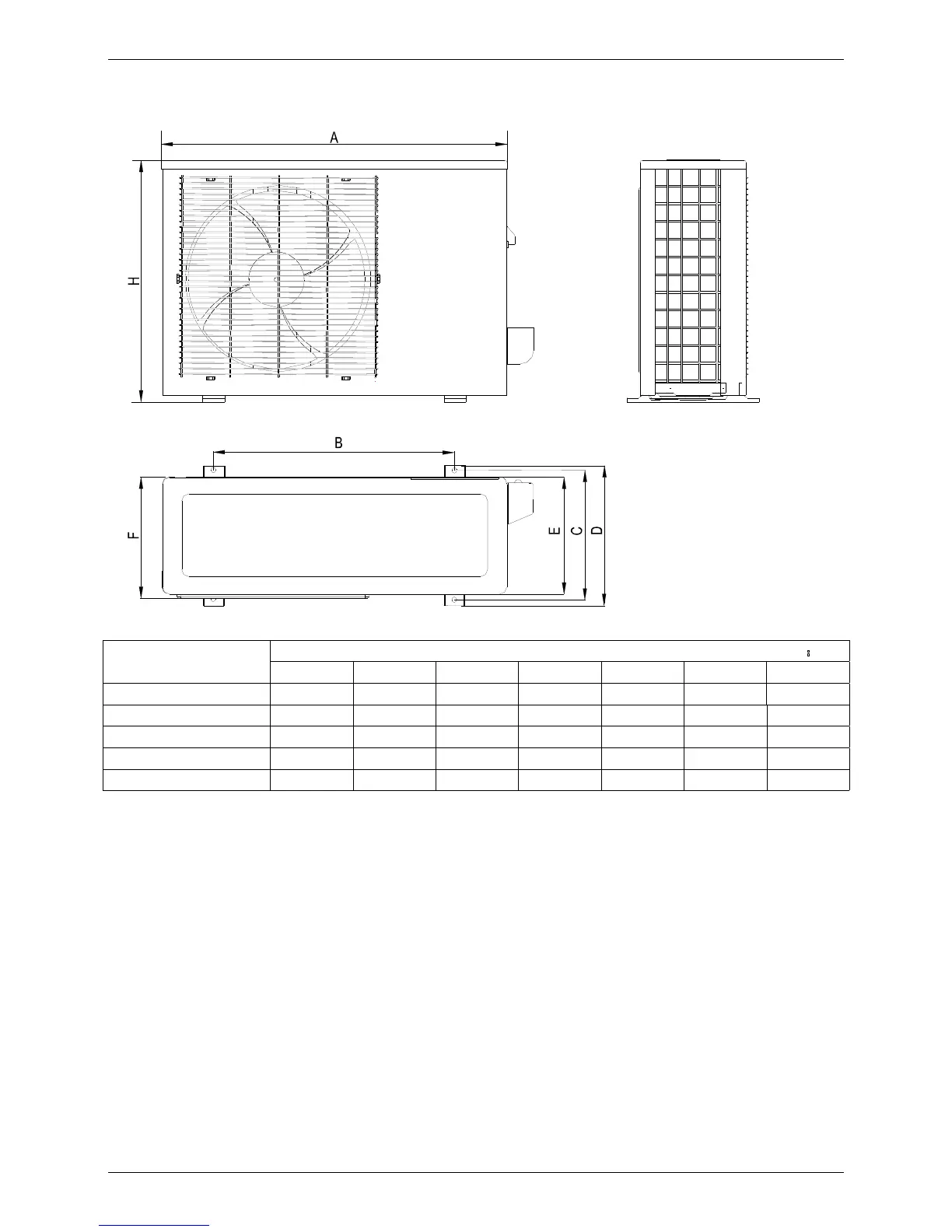
Dimensions
66 Outdoor Units
1. Dimensions
Model
Unit
mm
A B C D E F H
U2MRS-12 760 530 290 315 270 285 590
U2MRS-18 845 560 335 360 312 320 700
U2MRS-24 900 590 333 355 302 315 860
U2MRS-30 900 590 333 355 302 315 860
U2MRS-36 990 624 366 396 340 345 965

Table of Contents

Related product manuals