EasyManua.ls Logo

Midea MCD-36HRFN1-QRC8 - Field Wiring

Midea MCD-36HRFN1-QRC8
159 pages
To Next Page IconTo Next Page
To Next Page IconTo Next Page
To Previous Page IconTo Previous Page
To Previous Page IconTo Previous Page
Loading...
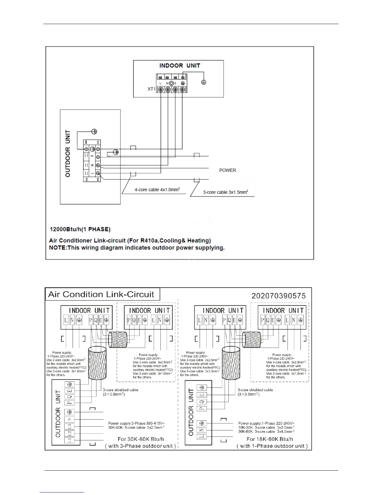
Field Wiring
34 Indoor Units
10. Field Wiring
12K
18K / 24K / 30K / 36K

Table of Contents

Related product manuals