EasyManua.ls Logo

Midea MDV-D140Q4/N1-E - Wiring Diagrams

Midea MDV-D140Q4/N1-E
105 pages
Print Icon
To Next Page IconTo Next Page
To Next Page IconTo Next Page
To Previous Page IconTo Previous Page
To Previous Page IconTo Previous Page
Loading...
Four-way Cassette MCAC-VTSM-2017-01
67
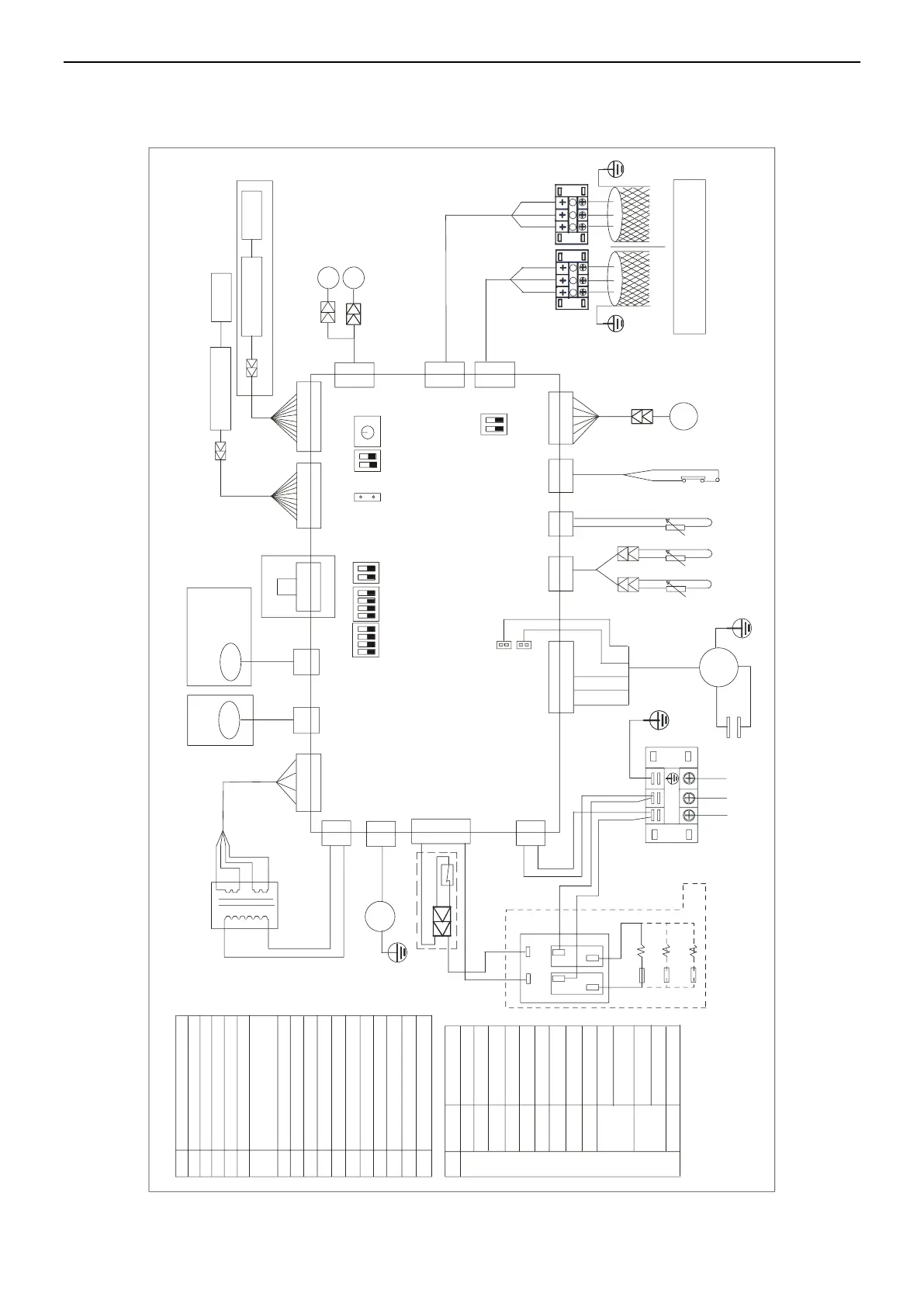
6. Wiring Diagrams
MDV-D28Q4/N1-D MDV-D36Q4/N1-D MDV-D45Q4/N1-D MDV-D56Q4/N1-D MDV-D71Q4/N1-D
MDV-D80Q4/N1-D MDV-D90Q4/N1-D MDV-D100Q4/N1-D MDV-D112Q4/N1-D MDV-D140Q4/N1-D
CN1
CN2
CN4
F M
C
TR
XT1
K
XP1
XS1
H
H
H
F
F
F
CN406 CN405
T1
XS6
XP6
WHITE
T2B
T2
XP7
BLACK
XS7
Y/G
L N
SW 1
SW 2
SW 5
SW 6
EN C1
J1
ON
ON
ON
ON
CN 11
CN 5CN 7
P2
CN 12
CN 8
PW M
CN 9
CN 17
CN 6
P3
XS8
XP8
SW 7
ON
PWM
T2B
T2
TR
FM
X3T1-
XS1-8
TERMINAL
CONNECTORS
XP1-8
AUXILIARY HEATER
H
F
K
FUSE
PROTECTOR SWITCH OVER HEAT
T1
CN10
CN15
CN 20
CN 15(W HIT E)
CN 10(Y ELL OW)
CS
WATER LEVEL SWITCH
CN 21
XP5
XS5
XP
XS4
XP4
XT2
Q EQ E
P
XT3
E
CN13
PUMP
GM
XS2
XP2
XS3
XP3
2
3600W
6
9
8
7
4
5
3
8000W
14000W
10000W
9000W
7100W
5600W
4500W
ENC1
0
1
2800W
2200W
11200W
12500W
202084090568
BLACK
PUMP
SWITCH
(FOR POWER)
NUMBER
POWER
INDOOR POWER
BLACK
WHITE(GRAY)
RED
BLUE
Y/G
BROWN
WHITE
NEW DISPLAY BOARD
WHITE
BLUE
BLACK
YELLOW
GRAY
BLACK
OLD DISPLAY BOARD
MAIN CONTROL BOARD
RED
RED
RED
RED
BLUE
BLUE
BLUE
ORANGE(Y ELLOW)
GM
SWING M OTOR
TRANS FO RMER
OUTER P IPE TEMP.
MIDDL E PIPE TEMP.
CODE
GM
TITLE
R OOM TEM P .
EXPAN SI ON VALVE
INDOO R FAN MOTOR
NOTE:PLEASE USE
3-CORE SHIELDED WIRE
TO IN DOOR C OMM. BUS TO CCM COMM. BUS
PUMP MOTOR
NEW D IS PLAY BOARD T ERMINAL(WHIT E)
OLD D IS PLAY BOARD T ERMINAL(YELL OW)
CS
C
FAN MOTOR CAP.
NOTE:
1.The Function s In The Dash ed Recta ngle Are Available
Fo r Particu la r Air -con ditioner.
W I RE
C O NT R O L LE R
W I RE
C O NT R O L LE R
A
15500W
2.SW1 SW2 SW5-SW7 MUST BE SETTED AS THIS DIAGRAM.、、
A LA RM
O N/OFF
CN 16
CN 3
CONNECTION LINE
IN ACCESSORY KIT

Related product manuals