EasyManua.ls Logo

Midea MGB-D30W/RN1 - Piping Diagram

Midea MGB-D30W/RN1
174 pages
Print Icon
To Next Page IconTo Next Page
To Next Page IconTo Next Page
To Previous Page IconTo Previous Page
To Previous Page IconTo Previous Page
Loading...
MCAC-ATSM-2011-12 Air-cooled modular chiller unit 50Hz
37
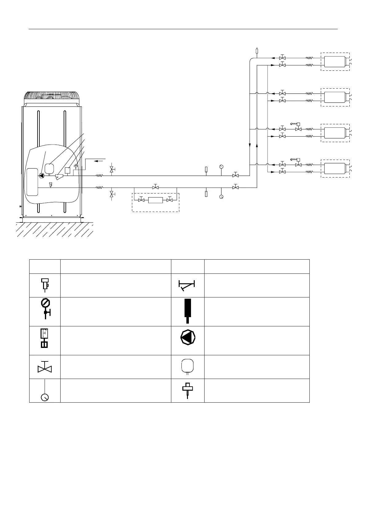
30KW module water pipeline sketch drawing
The table below describes the symbols.
Symbol Symbol explanation Symbol Symbol explanation
Safety valve
Y-shaped filter
Pressure gauge
Thermometer
Water flow switch
Water pump
Cut off valve
Expansion tank
Manometer
Water replenishing valve
Y-shaped filiter
Fan coil unit
Fan coil unit
Fan coil unit
Fan coil unit
This figure for reference purpose only, please in terms of the design rule for field installation.
Water replenishing valve
Water pump
Water-flow valve
Safety valve
2-way valve
2-way valve
1.5kg<Water replenishing pres<6kg
Flexible joint
Flexible joint
Aux. heater
Thermometer
Manometer
Cutoff valve
auto-air exchanse valve
Flexible joint
Flexible joint
Expansion tank
Double
-pipe
heat
exchanger

Related product manuals