EasyManua.ls Logo

Midea MHC-V16W/D2N8-B - Page 10

Midea MHC-V16W/D2N8-B
113 pages
Print Icon
To Next Page IconTo Next Page
To Next Page IconTo Next Page
To Previous Page IconTo Previous Page
To Previous Page IconTo Previous Page
Loading...
M thermal Mono
8 202004
Midea M thermal Mono Service Manual
MHC-V8W/D2N8-B / MHC-V10W/D2N8-B
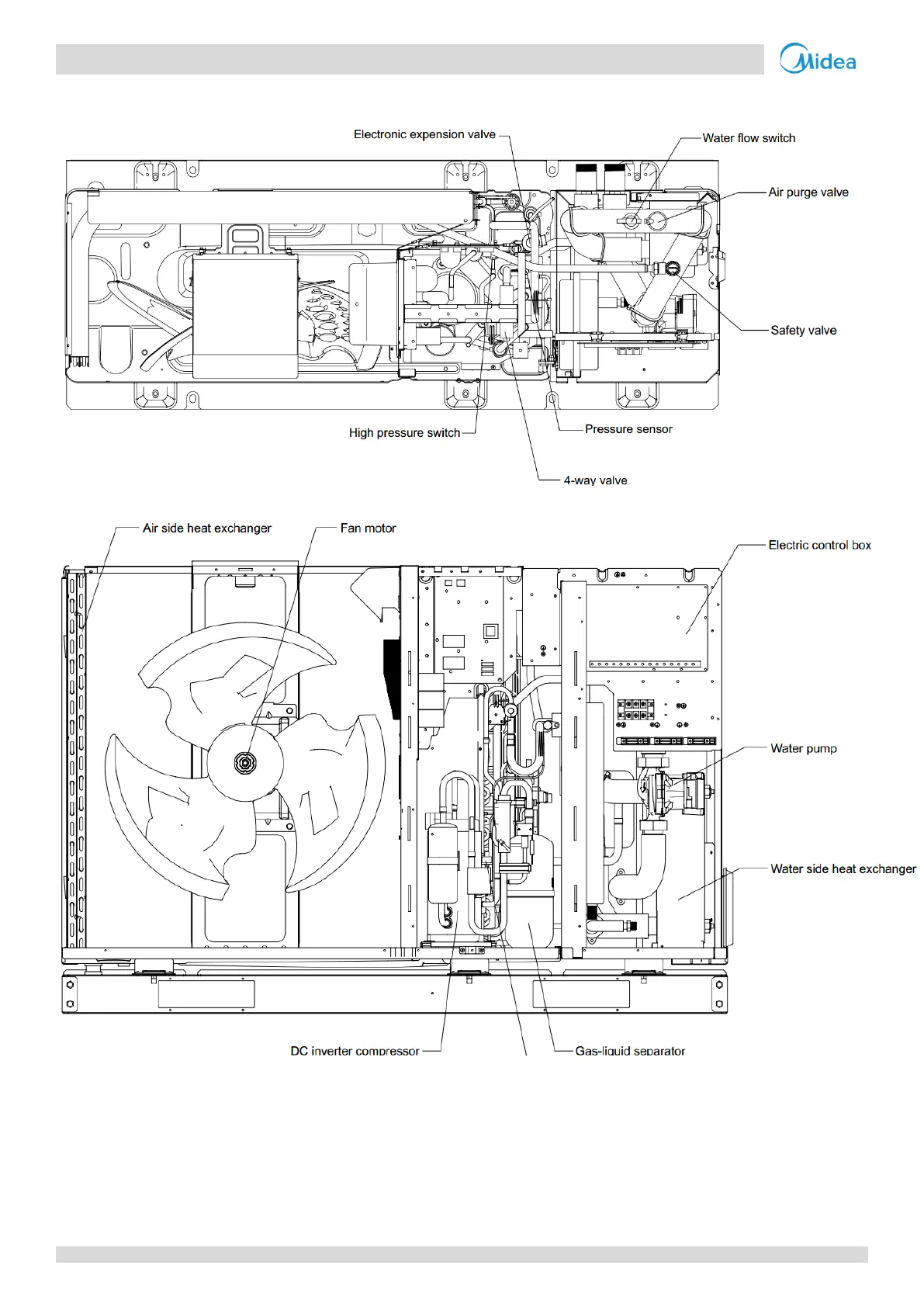
Figure 2-1.1: MHC-V8(10)W/D2N8-B top view
Figure 2-1.2: MHC-V8(10)W/D2N8-B front view
Midea CAC Confidential

Related product manuals