EasyManua.ls Logo

Midea MHC-V8W/D2N8-B - Page 12

Midea MHC-V8W/D2N8-B
113 pages
Print Icon
To Next Page IconTo Next Page
To Next Page IconTo Next Page
To Previous Page IconTo Previous Page
To Previous Page IconTo Previous Page
Loading...
M thermal Mono
10 202004
Midea M thermal Mono Service Manual
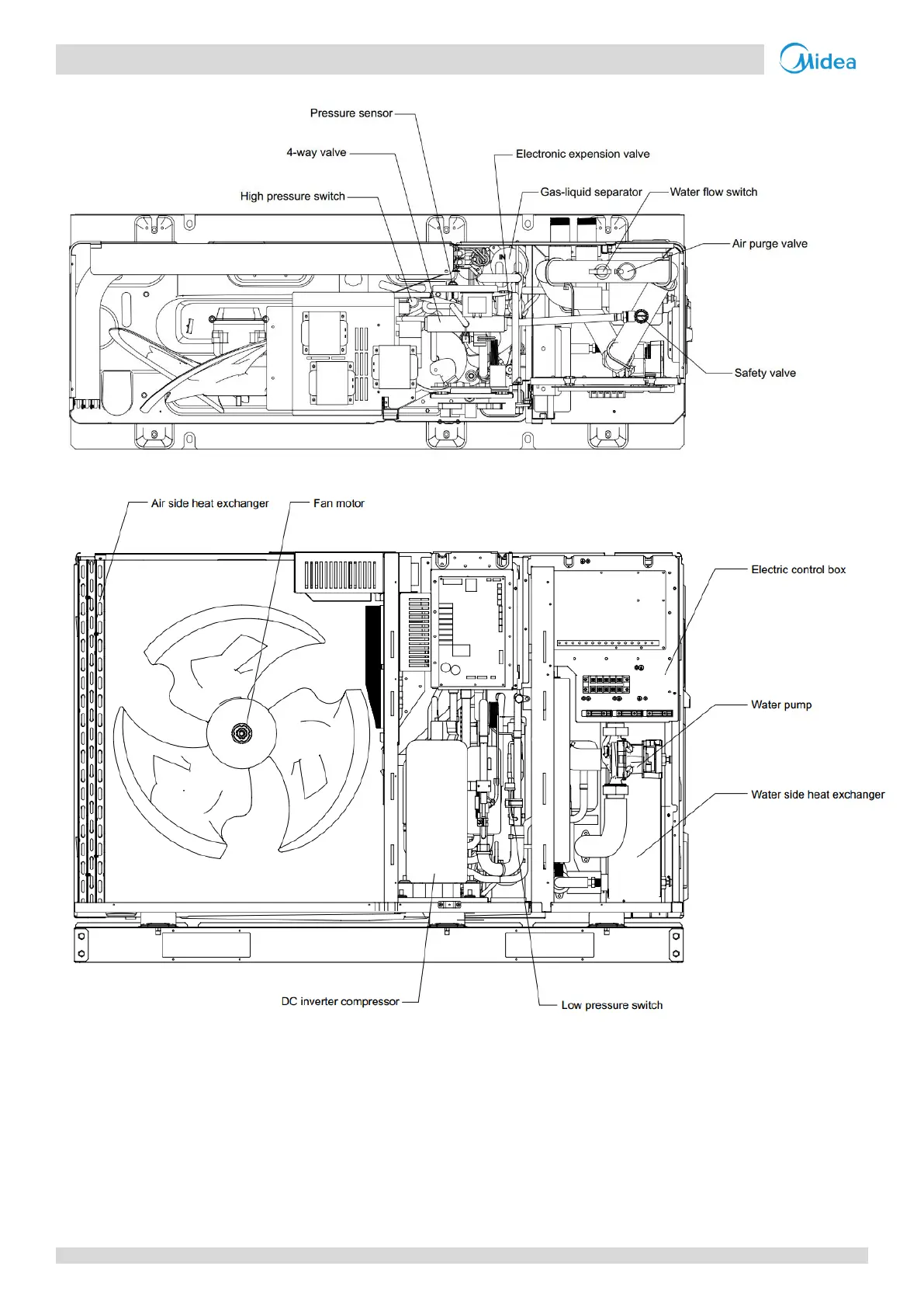
Figure 2-1.4: MHC-V12(14, 16)W/D2RN8-B top view
Figure 2-1.5: MHC-V12( 14, 16)W/D2N8-B, MHC-V12(14, 16)W/D2RN8-B front view
Midea CAC Confidential

Other manuals for Midea MHC-V8W/D2N8-B

Related product manuals